Stora möjligheter att kunna påverka det nya kontoret
Söker du ett lättillgängligt kontor med stora möjligheter att anpassa det efter egna önskemål då kan det här vara kontoret för dig. Lokalens flexibilitet möjliggör för både kontorsrum och öppna ytor. Det erbjuds förutsättningar att skapa en produktiv och inspirerande arbetsmiljö. Vid anpassningar försöker vi alltid tänka återbruk och hållbarhet.
Välkommen att kontakta oss för mer info och visning!
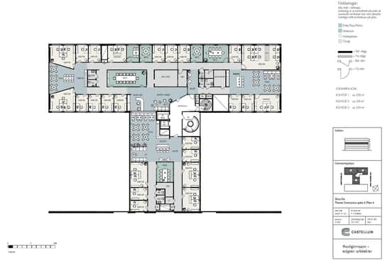
Planlösning
Lokalen ligger på ett våningsplan och är belägen på andra våning.
Området
Närhet till natursköna Skatås och Härlandatjärns friluftsområden för utomhusträning och promenader. SATS har en nybyggd stor träningsanläggning. Det finns en stor livsmedelshall i form av ICA Maxi i övrigt finns restauranger, systembolag, Mekonomen, hotell med mera.
Kommunikationer
Goda kommunikationer både med buss, spårvagn och bil då man snabbt kommer ut på de större lederna E20, E6 och E45.
Service
All tänkbar service finns i närområdet.
Fastigheten
Modern och representativ fastighet i toppenläge med god service i området.
- Bra läge nära trafikleder
- Nära köpcentrum
- Goda kommunikationer
Faciliteter i fastigheten
Service i området
Energi & hållbarhet
- Hållbarhetscertifiering: LEED O+M, Gold
- Total energianvändning: 109 kWh / m², år
- Energi CO2-påverkan: 5,6 kg CO₂ / m², år
Andra hyresgäster i fastigheten
Karta
Dokument
Broschyr
Kontaktperson

Nyfiken på den här lokalen? Eller behöver du hjälp att hitta rätt lokal för din verksamhet? Oavsett om du vet exakt vad du söker eller om du behöver rådgivning, så finns vi här och hjälper till.
Vi ser fram emot att höra av dig.