Gå till huvudinnehåll

Västerås City

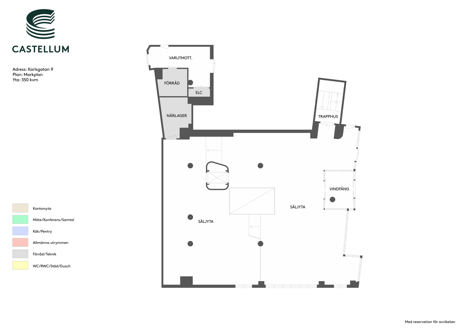
Karlsgatan 9 A

Butik Kontor Lager/Logistik Restaurang/Café

Yta

771 kvm

Arbetsplatser

5 - 75 st

Så räknar vi antal arbetsplatser

Detta spann är en uppskattning. Det finns flera faktorer som påverkar hur många arbetsplatser som kan rymmas i en lokal. Inte bara storleken på själva lokalen utan även hur den disponeras. Exempelvis kräver en lokal med många enskilda kontor mer plats än öppen planlösning. Andra begränsningar kan vara tillgången på luft och kyla, eller utrymningsvägar.

Tillträdesdatum

2026-06-01

Våningsplan

0

Showroom, butik eller restaurang – Högt kundflöde med skyltfönster

Upptäck möjligheterna i denna unika hörnlokal i Skrapan, Västerås, med en total yta på 771 kvadratmeter. Cirka 350 kvm ligger i markplan och resten på planet under, vilket ger flexibilitet och möjlighet att utnyttja ytan optimalt. Lokalen har stora fönster som ger ett perfekt skyltläge och skapar en ljus och inbjudande miljö.

Området är attraktivt och dynamiskt, omgivet av många arbetsplatser och bostäder, samt endast ett stenkast från Mimerkvarteret med cirka 7 500 arbetsplatser.

Den imponerande takhöjden på 5 meter ger en luftig och representativ känsla och öppnar för kreativa lösningar, inklusive möjligheten att bygga ett orangeri. Lokalen lämpar sig perfekt för showroom, butik, restaurang eller kombinerad verksamhet med lager, och erbjuder stora möjligheter att skapa en verksamhet som verkligen sticker ut.

Synlig entré från Karlsgatan som kan glasas in för att skapa ett orangeri för uteservering eller ytterligare försäljningsyta.

Planlösning

Lokalen är fördelad på två plan med cirka 350 kvm i markplan och resterande på planet under, vilket ger flexibla ytor för olika behov. Den öppna ytan kan användas för showroom, butik eller restaurang, medan planlösningen även ger möjlighet till lagerutrymme och andra funktioner. De stora fönstren i markplan ger synlighet och naturligt ljus, och den höga takhöjden på ca 5 meter skapar en rymlig och luftig känsla.

Direkt access för inlastning via garage gör det enkelt att hantera varor och utrustning.

Området

Med sina 81 meter är Skrapan den näst högsta byggnaden i Västerås. Skrapan är belägen i centrala Västerås och tillhör fastigheten Lorens där bl.a. ICA, hotell och restaurang finns. På lunchen kan du springa en runda i Västerås största park, Vasaparken, ta en promenad vid vattnet eller dröja dig kvar en stund på en av alla trevliga lunchrestauranger som finns i kvarteret.

Kommunikationer

Med 5 minuters promenad till Västerås Centralstation kan både dina pendlande kollegor och besökare snabbt ta sig till er nya arbetsplats. Västerås flygplats når man på tio minuter med bil och Arlanda kommer man till på en timme och tjugo minuter med flygbussen. Skavsta flygplats ligger ungefär en timmes bilfärd bort. Cykelvägar och promenadvägar rådet det förstås inte heller någon brist på.

Service

Från din nya lokal, med en utsikt utöver det vanliga, kliver du ut mitt i stadspulsen med närhet till restauranger, café och gym. Om du inte bor i Västerås pendlar du smidigt med 5 minuters promenad till tåg- och busstation. Om du skulle komma på något du saknar, kan du alltid meddela oss på Castellum. Vi är alltid intresserade av nya idéer kring hur områden kan utvecklas.

  • Maximal synlighet
  • Imponerande takhöjd
  • Perfekt för butik, showroom & restaurang

Faciliteter i fastigheten

Sopsortering Lastport Paketbox Uteplats Cykelrum Parkering Kök Skyltläge Konferensservice Garage Restaurang

Service i området

Resecentrum Buss Parkering Restaurang Café Hotell Tåg Shopping Elbilsladdning Gym Färja Grönområde

Energi & hållbarhet

  • Certifieringar: LEED O+M, Gold
  • Total energianvändning (2025): 35 kWh/m²
  • Klimatpåverkan: 7,47 kg CO₂e/m² (platsbaserad)

Andra hyresgäster i fastigheten

Plaza i Västerås AB - ICA Sverige AB - Lorens 14 - Azets Revision & Rådgivning - PerSim AB - Food folk Sverige AB - Lorens 14 - Manpower Aktiebolag - Lorens 14 - Inducore AB - Familjens jurist i Sverige AB - Lorens 14 - SCG Nordic AB - Fire and Risk Engineering Nordic AB - Lorens 14 - NEKTAB, Nordisk Elkraftteknik AB - Lorens 14 - CIM Consult Solution Sweden AB - Memira AB - Lorens 14 - SysPartner Consulting AB - Advokatbolaget Larsson & Partners AB - Praktikertjänst Aktiebolag - Lorens 14 - Mälarenergi Elnät AB - Lorens 14 - Telia Sverige AB - Lorens 14 - ENT Energiteknik AB - AdvokatByrån Torbjörn Persson - Audika AB - Lorens 14 - Västerås kommun - Lorens 14 - NET4MOBILITY Handelsbolag - Lorens 14 - L - Bankomat AB - Lorens 14 - Folkrörelsernas Mediaförening i Västerås - Polismyndigheten - Lorens 14

Karta

Dokument

Kontaktperson

Uthyrare

Ann-Charlotte Lydén

Fråga oss!

Nyfiken på den här lokalen? Eller behöver du hjälp att hitta rätt lokal för din verksamhet? Oavsett om du vet exakt vad du söker eller om du behöver rådgivning, så finns vi här och hjälper till.

Vi ser fram emot att höra av dig.

Intresseanmälan

Kontaktinformation

All behandling av personuppgifter sker i enlighet med dataskyddsförordningen och annan dataskyddslagstiftning. Läs mer om GDPR

Liknande lokaler i Västerås