Ljus kontorslokal med perfekt skyltläge
Välkommen till vår fina kontorslokal belägen med perfekt läge längs Arlandavägen med en utmärkt skyltning som ger ditt företag en synlighet som imponerar på kunderna!
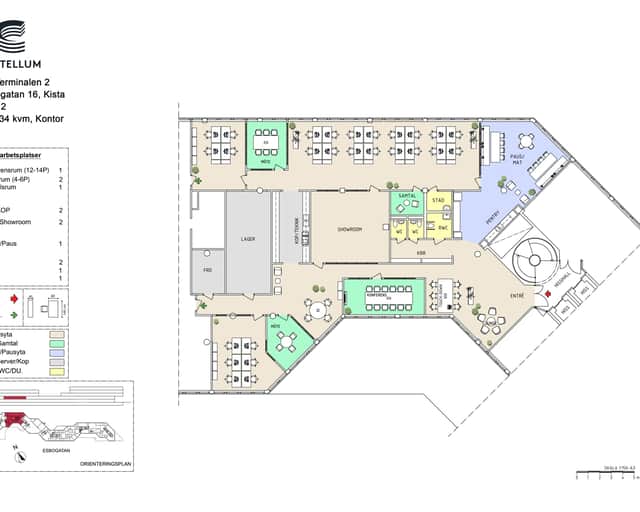
Lokalen har en modern blandad planlösning, med öppet landskap och separata kontorsrum som möjliggör en flexibel arbetsmiljö för ditt företag.
Ljusinsläppet från två väderstreck skapar en härlig arbetsmiljö där du kan känna dig både produktiv och avslappnad.
I fastigheten finns en takaltan där du kan ta en paus och njuta av en härlig utsikt över staden, samt ett fullt utrustat gym med omklädningsrum och bastu, vilket ger dig möjlighet att ta hand om din hälsa.
Förutom detta finns det ett antal restauranger och caféer i fastigheten, där du och dina medarbetare kan njuta av en härlig måltid eller ta en kaffepaus under dagen.
Du behöver inte oroa dig för parkering då det finns ett parkeringsgarage i fastigheten samt utanför med gott om utrymme för både personal och kunder.
Området
Hej, hello, guten tag, ni hao, marhaba. Välkommen till Kista. Platsen där människor från hela världen samlas för att upptäcka, utforska, uppfinna och uppleva. Här testkörs ny teknik, här breder gatukonsten ut sig, här överraskar restaurangerna och här frodas grönska och innovationer, precis som nya förmågor och forskarstjärnor. Ändå har Kista mer att erbjuda. De närmaste åren kommer stadsdelen få flera tusen nya bostäder och arbetsplatser samt bli en del av tvärbanan, så att livet kan sprudla i varje hörn och under dygnets alla timmar. Och för att ytterligare ta vara på Kistas fulla potential har vi på Castellum gått samman med andra aktörer i ett initiativ som ger stadsdelen en kulturell och social skjuts. Vad som händer mellan milstolparna är det ingen som vet. Men hör ni hemma bland de nytänkande, är detta platsen för er. Vi lovar att alltid vara på tårna för att hålla jämna steg med både ert företags och Kistas utveckling.
Kommunikationer
Från fastigheten till tunnebanan tar det ca 8 minuter att promenera (T-bana Akalla). Olika Busslinjer går genom området. Busshållplatsen utanför fastigheten tar dig direkt till Tunnelbanestationen Akalla.
Service
I fastigheten finns restaurang, gym och idrottshall. I Kista finns det en mängd olika träningsanläggningar. S.A.T.S, Actic, Friskis och Svettis, 24-seven, alla dessa finns inom några minuters promenad. Förutom träning inomhus tar man sig lätt bort till Ursviks fina motionsspår. Det finns både 2,5 kvm, 5 kvm och 1 mils spår.
Fastigheten
Kontorsfastighet som har renoverats och utvecklas de senaste åren och har ett utmärkt skyltläge mot E4:an. Fastigheten har en area på ca: 15 000 kvm och erbjuder ett flertal entréer.
- Utmärkt skyltläge
- Härligt ljusinsläpp
Energi & hållbarhet
- Hållbarhetscertifiering: LEED O+M, Gold
- Total energianvändning: 140 kWh / m², år
- Energi CO2-påverkan: 5,4 kg CO₂ / m², år
Andra hyresgäster i fastigheten
Karta
Dokument
Kontaktperson

Nyfiken på den här lokalen? Eller behöver du hjälp att hitta rätt lokal för din verksamhet? Oavsett om du vet exakt vad du söker eller om du behöver rådgivning, så finns vi här och hjälper till.
Vi ser fram emot att höra av dig.