Gå till huvudinnehåll

Stockholm Bromma/Mariehäll

Karlsbodavägen 17

Kontor

Yta

714 kvm

Tillträdesdatum

Enl. ök.

Våningsplan

1

Kontorslokal i toppskick, nära kommunikationer!

Välkommen till Karlsbodavägen 17 – en modern och flexibel kontorslokal om 714 kvm med närhet till både citypuls och naturnära omgivningar. Här erbjuds en välbalanserad planlösning som kombinerar öppna ytor med effektiva kontorsrum, perfekt för företag som söker en dynamisk arbetsmiljö där samarbete och fokus går hand i hand.

Läget på Karlsbodavägen ger utmärkta kommunikationsmöjligheter med goda förbindelser till både innerstan och närområdet. I direkt anslutning finner ni även områdets restaurang, vilket gör det enkelt att bjuda kunder eller kollegor på lunch eller ta en kaffe utanför kontoret.

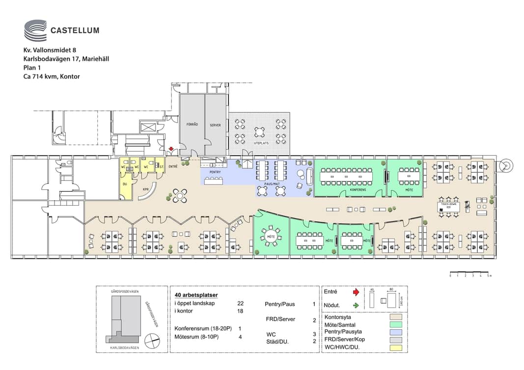
Planlösning

Lokalen har generösa ytor i öppet landskap, kompletterat med flera mötesrum och enskilda kontorsrum som ger möjlighet till avskildhet när det behövs. Den stora tillgången till naturligt ljus genomgående i lokalen skapar en trivsam atmosfär och bidrar till en inspirerande arbetsplats.

Som pricken över i:et finns en egen terrass – en uppskattad plats för pauser, kreativa möten eller afterwork med kollegorna under årets varmare dagar.

Området

Välkommen till Bromma/Mariehäll, en av Stockholm kommuns största arbetsplatser och ett område som ständigt utvecklas för att bli en förlängning av innerstaden. Beläget vid Bällstaån och gränsande till Sundbyberg, erbjuder detta område en fascinerande mix av kontor, lager och butiker. Inom räckhåll ligger Bromma Blocks, ett imponerande shoppingcenter som inte bara erbjuder en mångfald av butiker utan också ett brett utbud av service. Här finner du allt från shopping och restauranger till andra bekvämligheter. Sundbybergs centrum, en annan närliggande pärla, erbjuder ytterligare möjligheter till shopping, restauranger och en levande stadskärna. Välkommen till Bromma/Mariehäll – där framtid och tradition möts i en pulserande stadsdel!

Kommunikationer

Det går snabbt och lätt att ta sig till Bromma var du än befinner dig. Tvärbanan går ifrån Sickla Udde och genom Bromma, med en hållplats mitt i Mariehäll fram till Solna Station. Området trafikeras av flertalet busslinjer och kopplar ihop Bromma med bland annat Spånga, Alvik, Älvsjö, Solna, Danderyd, Ekerö och Mörby. Sundbyberg som är en stor kommunikationsknutpunkt på gångavstånd erbjuder tunnelbana, pendeltåg och fjärrtåg. Om du färdas med bil är du snabbt ute på lederna med närhet till både E4 och E18.

Parkering

Parkando har hand om driften av parkeringsanläggningen. Det finns möjlighet att antingen hyra fasta platser i garage eller hyra rörliga tillstånd utomhus. Det finns även parkeringsautomater i området för kortare besök. Är du intresserad, kontakta Parkando på telefonnummer 08 408 396 38

Vi vill vara ett hållbart fastighetsföretag och vill göra det enkelt för våra hyresgäster transportera sig miljömedvetet. Är du intresserad av att kunna ladda din elbil på jobbet kan du kontakta din Biträdande förvaltare för mer information.

Service

I fastigheten finns både café och restaurang. På café Lilla Hörnan beläget vid Gårdsfogdevägen 3A kan du avnjuta både morgonkaffe med macka samt lunch. På Restaurang Mariehäll beläget runt hörnet på Karlsbodavägen 17C kan du äta högklassig lunch mån-fre. På andra sidan vägen finner ni Bromma Blocks med all tänkbar service - sportbutiker, heminredning, restauranger och gym.

Fastigheten

Fastigheten med gångavstånd till flyget och tvärbanan utanför dörren. Tack vare sin närhet till Bromma flygplats har det här alltid suttit företag med kopplingar till flyg. Fastigheten består av flera byggnader med kontor och samt industriytor som konverterats till handel/Grosshandel.

Faciliteter i fastigheten

Parkering Restaurang

Service i området

Restaurang Café Shopping Gym Tvärbana Spårvagn

Energi & hållbarhet

  • Certifieringar: BREEAM In-Use, Very Good
  • Total energianvändning (2025): 21 kWh/m²
  • Klimatpåverkan: 5,12 kg CO₂e/m² (platsbaserad)

Andra hyresgäster i fastigheten

Höganäs Byggkeramik Aktiebolag - Tuc Sweden AB - Vallonsmidet 8 - AllOffice Nordic AB - Bastuspecialisten Ragnar Frunck Aktiebo - Alcro/PPG - Loelle AB - PRO Kakel och Klinker Sverige AB - Flügger Aktiebolag - Vallonsmidet 8 - Carglass Sweden AB - Vallonsmidet 8 - NERCIA Utbildning AB - Restaurang Mariehäll AB - Marbodal - Kungälvs Rörläggeri AB - Vallonsmidet 8 - NERCIA - Vallonsmidet 8 - Skyltbolaget Sweden AB - NFG - MG motor - AB Lunar Holding - Heimstaden Sweden AB- Vallonsmidet 8 - AB Café Lilla Hörnan Bromma - High Fidelity CI AB - EPSILON AB - Mio Försäljning AB - Betongblandaren 10 - Selga brommabutiken

Karta

Dokument

Kontaktperson

Uthyrare

Alan Badareh Marofi

Fråga oss!

Nyfiken på den här lokalen? Eller behöver du hjälp att hitta rätt lokal för din verksamhet? Oavsett om du vet exakt vad du söker eller om du behöver rådgivning, så finns vi här och hjälper till.

Vi ser fram emot att höra av dig.

Intresseanmälan

Kontaktinformation

All behandling av personuppgifter sker i enlighet med dataskyddsförordningen och annan dataskyddslagstiftning. Läs mer om GDPR

Liknande lokaler i Stockholm