Gå till huvudinnehåll

Stockholm Västberga

Karusellplan 11

Lager/Logistik

Yta

386 kvm

Arbetsplatser

8 st

Så räknar vi antal arbetsplatser

Detta spann är en uppskattning. Det finns flera faktorer som påverkar hur många arbetsplatser som kan rymmas i en lokal. Inte bara storleken på själva lokalen utan även hur den disponeras. Exempelvis kräver en lokal med många enskilda kontor mer plats än öppen planlösning. Andra begränsningar kan vara tillgången på luft och kyla, eller utrymningsvägar.

Tillträdesdatum

Enl. ök.

Våningsplan

0

Lagerlokal på markplan nära E4

Välkommen till en flexibel och funktionell lokal om ca 386 kvm – en perfekt kombination av kontor, lager och showroom i ett och samma plan.

Redan vid entrén möts ni av en stor, öppen yta med pelarfri struktur som lämpar sig utmärkt för lager, logistik, lättare produktion eller visningsmiljöer. De generösa ytorna och den tydliga rumsdispositionen gör det enkelt att anpassa lokalen efter verksamhetens behov, oavsett om ni prioriterar flöden, exponering eller logistik.

I direkt anslutning till lagerdelen finns flera förråd, liksom WC, dusch och städutrymmen, placerade för att skapa en smidig och effektiv arbetsvardag. Kontorsrummen är smart fördelade både i lokalens främre och bakre del, vilket ger en tydlig separation mellan administrativa funktioner och operativ verksamhet – perfekt för företag som vill kombinera lugna arbetsplatser med aktiv drift.
Ett trevligt pentry med paus-/loungeyta skapar en naturlig samlingspunkt för personalen, och ger plats för både raster och informella möten.

Helheten är en yteffektiv, flexibel och värdeskapande lokal som passar företag med behov av kombinerade ytor för kontor, lager, showroom eller produktion – med tydliga flöden och utmärkta förutsättningar för professionell vardag.

Välkommen på visning!

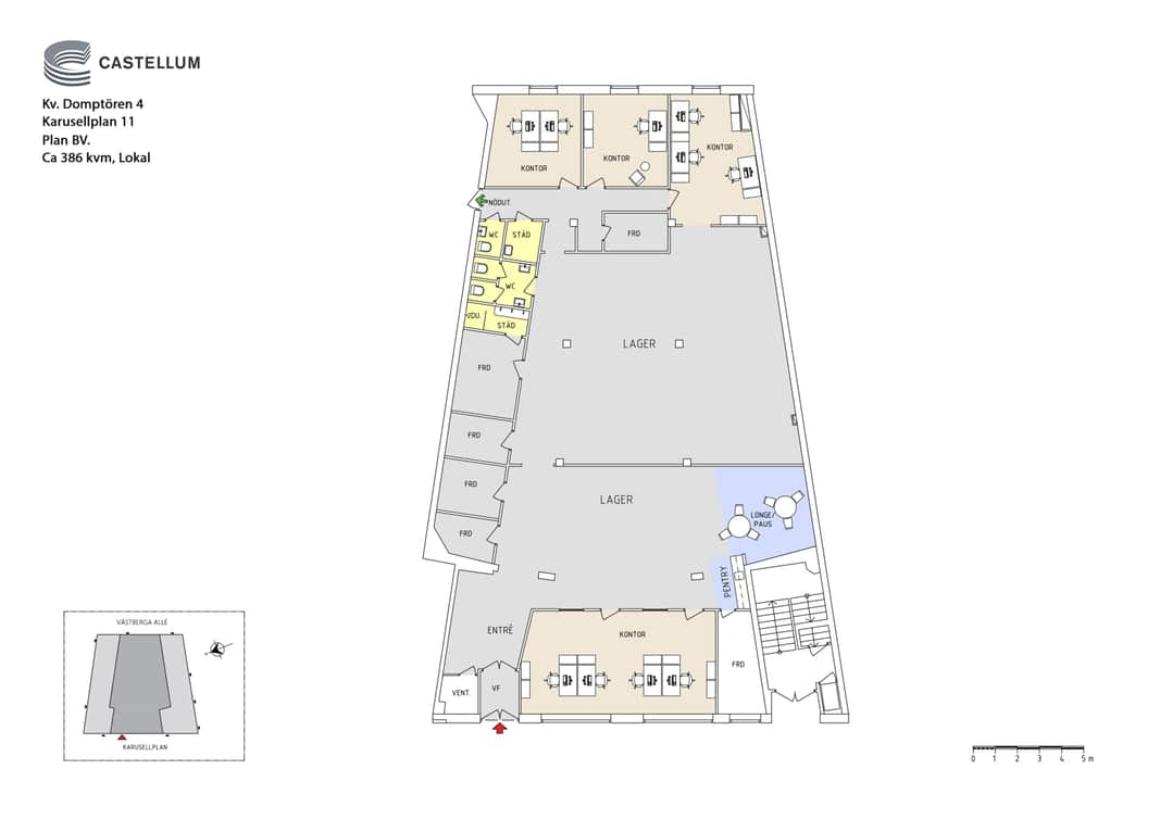
Planlösning

Lokalen om ca 386 kvm på plan BV erbjuder en flexibel och välorganiserad planlösning som kombinerar kontorsytor, lager och praktiska servicefunktioner på ett effektivt sätt. Direkt innanför entrén möts man av en större öppen yta som lämpar sig väl för lager, logistik, lättare produktion eller showroom, där den generösa golvytan gör det enkelt att anpassa efter verksamhetens krav. Den pelarfria strukturen skapar god flexibilitet och möjliggör tydliga flöden för varuhantering.

I nära anslutning finns flera förråd, samt WC, dusch och städutrymmen, strategiskt placerade för att stödja en funktionell arbetsvardag. Lokalen kompletteras av kontorsrum placerade både i den främre och den bakre delen av ytan, vilket skapar en tydlig separation mellan administrativa funktioner och lagerverksamhet — perfekt för företag som behöver diskreta arbetsplatser samtidigt som logistiken flyter smidigt.

Ett pentry med paus-/loungeyta ger en trivsam plats för personalen att ta raster och hålla informella möten.
Helheten är en funktionell och yteffektiv lokal som lämpar sig utmärkt för verksamheter med behov av kombinerade ytor för kontor, lager, showroom eller produktion — med tydliga flöden och god intern logistik.

Området

Fastigheten ligger i Västberga Industriområde som till största delen består av kontors- och industrifastigheter. Närheten till Essingeleden / E4:an och Södra länken gör att det är lätt att ta sig ut på de stora lederna. Både nära tunnelbana, och bussar.

Kommunikationer

I rusningstrafik trafikerar buss 143 Drivhjulsvägen, sträckning Liljeholmen - Högdalen. Buss 165 går med 10-minuterstrafik (Liljeholmen - Farsta Centrum). Det är ca 500 m till Midsommarkransens T-bana. Essingeleden i direkt anslutning till fastigheten.

Service

Västberga Handelsplats med sitt butiksutbud samt ett flertal restauranger.

Fastigheten

Liten kontorsbyggnad i suterräng med i bra läge nära Essingeleden / E4:an.

  • Stora skyltfönster
  • Buss utanför dörren
  • Goda inlastningsmöjligheter

Faciliteter i fastigheten

Restaurang

Service i området

Buss

Energi & hållbarhet

  • Total energianvändning (2025): 12 kWh/m²
  • Klimatpåverkan: 4,46 kg CO₂e/m² (platsbaserad)

Andra hyresgäster i fastigheten

Avarn Security AB - Ryds Bilglas - Outdoor Enterprise Sweden AB - Teaterteknik Peter Hallin Aktiebolag - Struktursanering Sverige AB - Mälarvarvet Konsult AB

Karta

Dokument

Kontaktperson

Uthyrare

Mia Idre

Fråga oss!

Nyfiken på den här lokalen? Eller behöver du hjälp att hitta rätt lokal för din verksamhet? Oavsett om du vet exakt vad du söker eller om du behöver rådgivning, så finns vi här och hjälper till.

Vi ser fram emot att höra av dig.

Intresseanmälan

Kontaktinformation

All behandling av personuppgifter sker i enlighet med dataskyddsförordningen och annan dataskyddslagstiftning. Läs mer om GDPR

Liknande lokaler i Stockholm