Gå till huvudinnehåll

Stockholm Bromma/Mariehäll

Fredsforsstigen 22-24

Industri Kontor Lager/Logistik

Yta

221 kvm

Tillträdesdatum

Enl. ök.

Fin kombilokal i direkt anslutning till lastkaj

Letar du efter en kombilokal nära city?

Då är detta en perfekt möjlighet för er som söker både smart logistik och moderna arbetsytor. Lokalen erbjuder en rymlig lageryta med en stor, öppen planlösning och direkt anslutning till lastkaj – vilket ger mycket smidiga flöden för både in- och utlastning. Bärigheten i lagret är 750 kg/kvm och passar därmed för verksamheter med högre krav på kapacitet och funktionalitet.

Kontorsdelen är ljus och välplanerad med en öppen arbetsyta, ett trevligt konferensrum och ett pentry. De fina ytskikten och de många fönstren skapar en trivsam miljö med generöst ljusinsläpp som gör arbetsdagen både behaglig och effektiv.

Det här är en flexibel lokal som kombinerar tillgänglighet, yta och god arbetsmiljö – endast en kort resa från city.

Välkommen på visning!

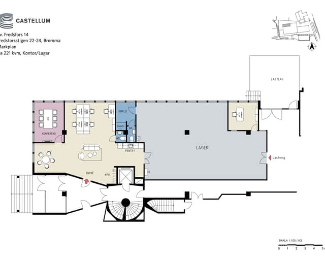
Planlösning

Lokalen omfattar cirka 221 kvm i markplan och kombinerar kontor och lager med genomtänkta flöden. Entrén ligger centralt och leder in till en öppen kontorsdel i ljusgul markering, med plats för flera arbetsstationer och möblerade ytor för samvaro. Intill kontorsytan finns ett större konferensrum i rosa markering med goda ytor för möten. I direkt anslutning ligger serviceutrymmen i blått, inkluderande två omklädningsrum, två WC samt dusch.

Den stora lagerytan, markerad i grått, upptar lokalens högra del och erbjuder generös takhöjd och god överblick. Lagret nås både från kontorsdelen och via en separat lastintagspunkt längst till höger, vilket möjliggör smidiga logistikflöden. Utanför finns även ett markerat lastkajsområde. Layouten skapar en tydlig och effektiv zonindelning mellan administrativa ytor och lagerverksamhet, vilket gör lokalen väl anpassad för företag med behov av både arbetsplatser och funktionella logistikytor.

Området

Välkommen till Bromma/Mariehäll, en av Stockholm kommuns största arbetsplatser och ett område som ständigt utvecklas för att bli en förlängning av innerstaden. Beläget vid Bällstaån och gränsande till Sundbyberg, erbjuder detta område en fascinerande mix av kontor, lager och butiker. Inom räckhåll ligger Bromma Blocks, ett imponerande shoppingcenter som inte bara erbjuder en mångfald av butiker utan också ett brett utbud av service. Här finner du allt från shopping och restauranger till andra bekvämligheter. Sundbybergs centrum, en annan närliggande pärla, erbjuder ytterligare möjligheter till shopping, restauranger och en levande stadskärna. Välkommen till Bromma/Mariehäll – där framtid och tradition möts i en pulserande stadsdel!

Kommunikationer

Det går snabbt och lätt att ta sig till Bromma var du än befinner dig. Tvärbanan går ifrån Sickla Udde och genom Bromma, med en hållplats mitt i Mariehäll fram till Solna Station. Området trafikeras av flertalet busslinjer och kopplar ihop Bromma med bland annat Spånga, Alvik, Älvsjö, Solna, Danderyd, Ekerö och Mörby. Sundbyberg som är en stor kommunikationsknutpunkt på gångavstånd erbjuder tunnelbana, pendeltåg och fjärrtåg. Om du färdas med bil är du snabbt ute på lederna med närhet till både E4 och E18.

Parkering

Parkando har hand om driften av parkeringsanläggningen. Det finns möjlighet att antingen hyra fasta platser i garage eller hyra rörliga tillstånd utomhus. Det finns även parkeringsautomater i området för kortare besök. Är du intresserad, kontakta Parkando på telefonnummer 08 408 396 38. Vi vill vara ett hållbart fastighetsföretag och vill göra det enkelt för våra hyresgäster transportera sig miljömedvetet. Är du intresserad av att kunna ladda din elbil på jobbet kan du kontakta din Biträdande förvaltare för mer information. I fastigheten finns även tillgång till cykelgarage.

Service

I området finns både café och restaurang. På café Lilla Hörnan beläget vid Gårdsfogdevägen 3A kan du avnjuta både morgonkaffe med macka samt lunch. På Restaurang Mariehäll beläget runt hörnet på Karlsbodavägen 17C kan du äta högklassig lunch mån-fre. Med endast 7 min gångavstånd till Sundyberg finner ni alla tänkbar service. Livsmedelsbutiker, skönhetssalonger, gallerior m.m.

Fastigheten

En arkitektonisk dröm med den tidstypiska och karaktäristika fasaden som också är kulturklassad. Fastigheten uppfördes under sent 1950-tal och ägdes länge av Uppsala Universitet innan Castellum förvärvade den. Fastigheten består till största del av kontor och har några mindre lagermöjligheter med en stor gemensam lastkaj. Fredsfors 14 ligger med trevlig utsikt över Bällstaån i ett område som är under utveckling i och med att Stockholm växer.

  • Kombilokal
  • Öppen planlösning
  • God bärighet

Faciliteter i fastigheten

Parkering Garage

Service i området

Buss Parkering Restaurang Café Shopping Tvärbana

Energi & hållbarhet

  • Certifieringar: LEED O+M, Gold
  • Total energianvändning (2025): 17 kWh/m²
  • Klimatpåverkan: 0,19 kg CO₂e/m² (platsbaserad)

Andra hyresgäster i fastigheten

Transdev - IDL Biotech AB - Exxentric - Svenska Lumon Aktiebolag - NIKA Inglasning AB - Metrohm Nordic AB - Surfcleaner AB - STV Svenska Tele & Video Konsult AB - Mediaformat Sweden AB - Bonnelsson AB/Collectable BB AB - ramen - Sector Alarm AB - Aveki AB - Viken Miljökonsult AB - Libergs Sweden AB - Autotech Teknikinformation AB - Åke Sundvall Byggnads AB - K. Blückert Eltjänst AB

Karta

Dokument

Kontaktperson

Uthyrare

Alan Badareh Marofi

Fråga oss!

Nyfiken på den här lokalen? Eller behöver du hjälp att hitta rätt lokal för din verksamhet? Oavsett om du vet exakt vad du söker eller om du behöver rådgivning, så finns vi här och hjälper till.

Vi ser fram emot att höra av dig.

Intresseanmälan

Kontaktinformation

All behandling av personuppgifter sker i enlighet med dataskyddsförordningen och annan dataskyddslagstiftning. Läs mer om GDPR

Liknande lokaler i Stockholm