Gå till huvudinnehåll

Göteborg Högsbo/Sisjön

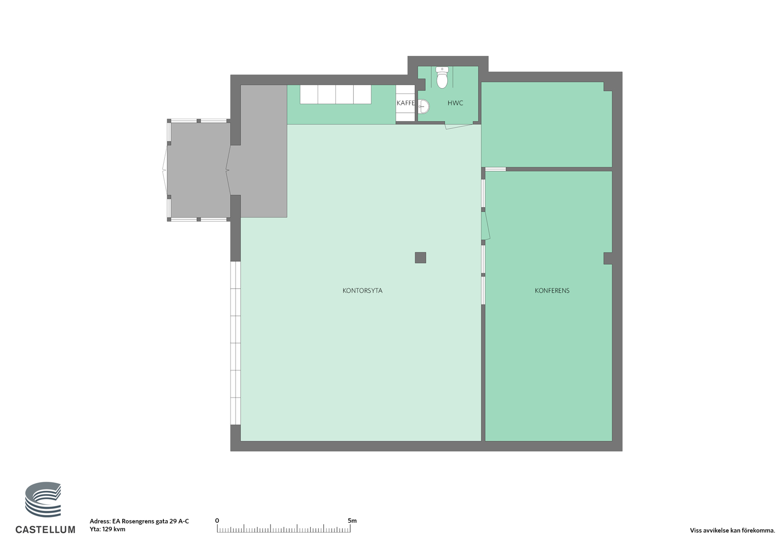
E A Rosengrens Gata 29 A-C

Kontor

Hyresindikation

15 000 kr/mån

Detaljerad hyresinformation

Hyresindikation i befintligt skick

Kallhyra: 1350 kr/kvm
Driftkostnad: 100 kr/kvm
Fastighetskatt: 72 kr/kvm

Yta

129 kvm

Tillträdesdatum

Enl. ök.

Nyrenoverat kontor med öppen planlösning

Här finns en stor öppen yta med pentry samt ett stort kontor/konferensrum som kan delas upp i mindre ytor.

Planlösning

Lokalen ligger i bottenplan och har bra tillgänglighet.
Inflyttningsklart!

Området

Fastigheten ligger i direkt anslutning till Dag Hammarsköldsleden med fantastiskt skyltläge och ett stenkast till både Frölunda Torg och Köpcenter 421 med såväl service och restauranger. Högsbo genomgår just nu en långsiktig förvandling där man går från att vara ett renodlat industriområde till att bli en blandstad, det vill säga en handels- och mötesplats där många olika verksamheter ryms och där näringsliv samsas med boende, handel, restauranger och samhällsfunktioner av olika slag.

Kommunikationer

Goda bussförbindelser samt närhet till knutpunkten Järnbrott.

Service

Hela Sisjön handelsområde samt närhet till Frölunda Torg och 421.

Fastigheten

Kontorshus med garage, skyltläge mot Daghammarsköldsleden och nära till knytpunkt Radiomotet.

  • Ljus lokal
  • Bottenplan
  • Förråd, garage och parkering

Faciliteter i fastigheten

Parkering Elbilsladdning

Energi & hållbarhet

  • Total energianvändning (2025): 31 kWh/m²
  • Klimatpåverkan: 0 kg CO₂e/m² (platsbaserad)

Andra hyresgäster i fastigheten

Coromatic AB - Hydnet AB - Infratek - Omnisys Instruments Aktiebolag - Office sverige AB - Mölndals Hunddagis AB - Sverige Fog AB

Karta

Dokument

Kontaktperson

Uthyrare

Ylva Brodin

Fråga oss!

Nyfiken på den här lokalen? Eller behöver du hjälp att hitta rätt lokal för din verksamhet? Oavsett om du vet exakt vad du söker eller om du behöver rådgivning, så finns vi här och hjälper till.

Vi ser fram emot att höra av dig.

Intresseanmälan

Kontaktinformation

All behandling av personuppgifter sker i enlighet med dataskyddsförordningen och annan dataskyddslagstiftning. Läs mer om GDPR

Liknande lokaler i Göteborg