Gå till huvudinnehåll

Göteborg Centrum

Kungsgatan 23

Kontor

Hyresindikation

125 000 kr/mån

Detaljerad hyresinformation

Hyra: 1 510 000 kr/år
Fastighetskatt: 127 000 kr/år
Driftskostnader (värme/kyla, vent, vatten samt sopor): 67 000 kr/år
El, eget abonnemang
Moms tillkommer med 25%

Yta

430 kvm

Arbetsplatser

10 - 25 st

Så räknar vi antal arbetsplatser

Detta spann är en uppskattning. Det finns flera faktorer som påverkar hur många arbetsplatser som kan rymmas i en lokal. Inte bara storleken på själva lokalen utan även hur den disponeras. Exempelvis kräver en lokal med många enskilda kontor mer plats än öppen planlösning. Andra begränsningar kan vara tillgången på luft och kyla, eller utrymningsvägar.

Tillträdesdatum

Enl. ök.

Våningsplan

2

Fräck lokal med stora möjligheter för er verksamhet att växa på!

Utforma en arbetsplats som speglar er fullt ut – i ett attraktivt och centralt läge!

Här får ni möjligheten att sätta er egen prägel på en lokal med stark identitet och stor utvecklingspotential. Utrymmet kan anpassas i grunden efter era behov och visioner. Tillsammans med våra arkitekter och projektledare tar vi fram en helhetslösning där funktionalitet, design och ert varumärke samverkar, där ni är involverade genom hela resan.

Hållbarhet genomsyrar vårt arbetssätt. Vid anpassningar och ombyggnationer prioriterar vi återbruk och smarta materialval för att minska klimatpåverkan. Samtidigt skapas en modern och genomtänkt miljö med en personlig karaktär.

Lokalen utmärks också av en imponerande ljusgård med generös takhöjd och stora takfönster som släpper in rikligt med dagsljus. Det ger en öppen, inspirerande atmosfär som bidrar till en trivsam arbetsmiljö. Läget placerar er mitt i stadens liv och rörelse, med ett brett utbud av service inom bekvämt avstånd, allt från butiker och caféer till restauranger och smidiga kommunikationer.

Här får ni en unik möjlighet att skapa något helt eget i en lokal med utmärkta förutsättningar. Forma er framtida arbetsplats precis så som ni vill ha den.

Kontakta oss gärna för mer information eller för att boka en visning!

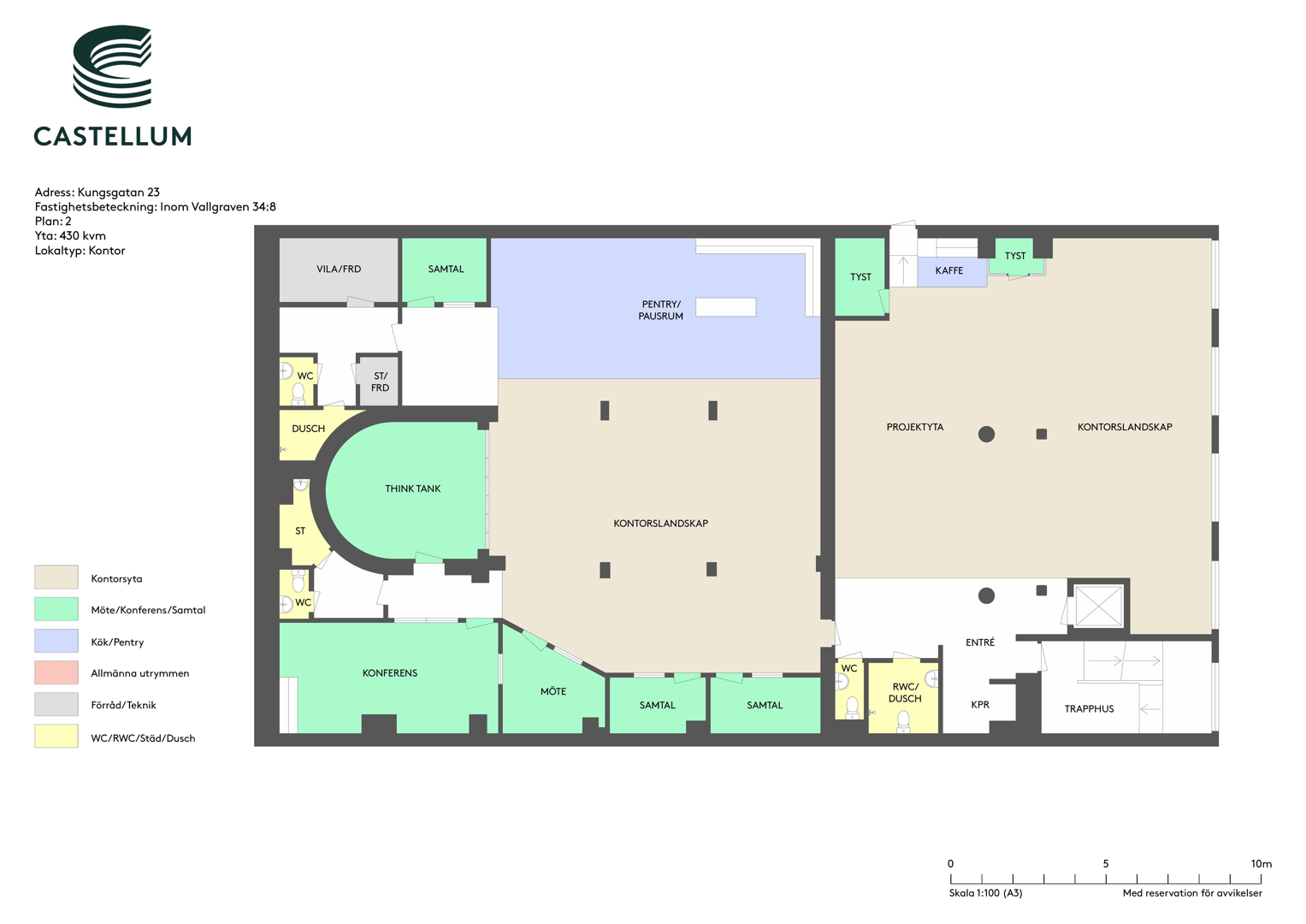
Planlösning

Lokalen har en flexibel planlösning som enkelt kan formas efter era specifika behov och önskemål. Oavsett om ni vill ha öppna samarbetsytor, fler avskilda kontor, inspirerande mötesrum eller en kombination av olika funktioner, tar vi fram en lösning som stöttar ert sätt att arbeta.
En särskild kvalitet i lokalen är den generösa ljusgården med hög takhöjd och stora takfönster. Den skapar ett härligt ljusinsläpp och en öppen känsla, samtidigt som den kan fungera som en naturlig samlingspunkt, exempelvis som lounge, mötesyta eller som ett centralt nav som knyter samman olika delar av kontoret.

Ni är med genom hela processen, från idéstadiet till färdigställd miljö. Tillsammans med våra arkitekter och projektledare utvecklar vi en genomtänkt planlösning som både lyfter fram er profil och bidrar till en effektiv, trivsam och hållbar arbetsplats över tid. Med fokus på anpassningsbarhet och hållbara val säkerställer vi att varje yta används på ett genomtänkt sätt, och att resultatet blir en funktionell och inspirerande miljö som möter era krav.

Området

Att etablera sig i Inom Vallgraven innebär att ta plats i hjärtat av Göteborgs mest dynamiska och eftertraktade affärsområde. Här möts historia, innovation och ett pulserande stadsliv som ger en kombination för att skapa optimala förutsättningar för företag att växa och synas.
Kring Magasinsgatan och Kungsgatan har ett av stadens mest levande kvarter vuxit fram. Området präglas av en unik mix av etablerade varumärken, konceptbutiker, restauranger, caféer och kreativa verksamheter. Allt du kan tänka dig.
Detta skapar ett konstant flöde av människor och ger företag en naturlig exponering i vardagen. För verksamheter som värdesätter synlighet, tillgänglighet och ett starkt sammanhang är läget svårslaget.
Området har under de senaste åren etablerat sig som ett av Göteborgs mest trendmedvetna områden då det blivit en plats där nya idéer får fäste och där företag kan positionera sig i framkant. Kombinationen av historiska miljöer och modern stadsutveckling skapar en autentisk och inspirerande arbetsmiljö som stärker både varumärke och företagskultur.

Kommunikationer

Med ett strategiskt läge i Inom Vallgraven kan man enkelt att ta sig till och från kontoret. Ett av områdets allra starkaste värden är dess goda tillgänglighet.
Precis intill finner du Domkyrkans hållplats, en av stadens mest centrala hållpunkter med flera spårvagns- och busslinjer som passerar kontinuerligt under hela dagen.
På bara några minuters promenad nås knutpunkten Stenpiren, där du också finner ett brett utbud av spårvagns-, buss- och båtlinjer. Härifrån når medarbetare och besökare snabbt hela Göteborgsregionen, från Hisingen till västra skärgården.
För den som pendlar längre sträckor ligger även Göteborgs centralstation inom bekvämt gångavstånd samt nås enkelt via spårvagnen på några få minuter.

Parkering

Inom Vallgraven erbjuder området väl fungerande och flexibla parkeringslösningar som underlättar vardagen för både medarbetare och besökare.
I direkt närhet finns flera parkeringsanläggningar, däribland P-Hus Kungsgaraget, Otterhällegaraget och Pedagogen Parkeringshus. Som tillsammans ger god tillgång till parkering året om. Dessa anläggningar erbjuder smidig in- och utfart samt närhet till stadens viktigaste stråk och kan erbjuda olika parkeringslösningar efter verksamhetens behov gällande både korttids-och långtidsparkering.
För kortare besök finns även ett flertal gatuparkeringar i området kring Magasinsgatan och Kungsgatan, vilket gör det enkelt för kunder och leveranser att snabbt nå verksamheten.

Parkeringsplatser finns att hyra i området Apcoa 08-556 306 70 samt Q-Park 0771-96 90 06.

Service

Hos oss har varje hyresgäst ett eget team

Med ett starkt lokalt engagemang är vi måna om att leva upp till de förväntningar som ställs på en trygg och långsiktig hyresvärd, varje dag, i stort och smått. Alla våra fastigheter sköts av vår egen personal och som hyresgäst har du tillgång till ett eget Castellumteam som ser till att du trivs hos oss. Och om dina behov så småningom förändras kan vi, tack vare vår storlek, nästan alltid erbjuda en lösning. För att göra det enkelt för våra hyresgäster att leva hållbart erbjuder vi bland annat gröna hyresavtal och förnybar el.

Fastigheten

Mitt i hjärtat av Göteborg, i det eftertraktade området Inom Vallgraven, finns denna unika och karaktärsfulla fastighet med anor från tidigt 1800-tal. Här möts historisk charm och modern funktionalitet i en av stadens mest levande och attraktiva miljöer.
Fastigheten har ett strategiskt hörnläge vid Magasinsgatan och Kungsgatan, två av Göteborgs mest dynamiska stråk för handel, restaurangliv och service. Läget erbjuder ett starkt kundflöde, utmärkt exponering och närhet till stadens bästa kommunikationer.
Byggnaden omfattar cirka 4 500 kvm och erbjuder en välbalanserad mix av attraktiva butikslokaler i markplan och flexibla kontorsytor i övre plan. De generösa ytorna, tillsammans med fastighetens centrala läge, skapar optimala förutsättningar för såväl etablerade verksamheter som växande företag.
Den historiska karaktären ger fastigheten en tydlig identitet, samtidigt som löpande moderniseringar säkerställer en hög teknisk standard och god hållbarhetsprestanda med miljöcertifieringar.
Resultatet är en fastighet som möter dagens krav utan att förlora sin själ!

  • Skräddarsydd arbetsplats för er
  • Ljusgård med imponerande rymd och ljus
  • Central mötespunkt mitt i city

Faciliteter i fastigheten

Sopsortering Café Restaurang Gym

Service i området

Buss Parkering Restaurang Café Hotell Shopping Gym Spårvagn

Energi & hållbarhet

  • Certifieringar: LEED O+M, Gold
  • Total energianvändning (2025): 24 kWh/m²
  • Klimatpåverkan: 2,62 kg CO₂e/m² (platsbaserad)

Andra hyresgäster i fastigheten

Inköps- och upphandlingsförvaltningen - SF-Bokhandeln Aktiebolag - Wesslau Söderqvist Advokatbyrå Väst HB - The Uppsala English Bookshop Aktiebolag - Haglöfs AB (Fd A.F. Fashion AB) - Ragtime AB

Karta

Dokument

Kontaktperson

Uthyrare

Denise Ström

Fråga oss!

Nyfiken på den här lokalen? Eller behöver du hjälp att hitta rätt lokal för din verksamhet? Oavsett om du vet exakt vad du söker eller om du behöver rådgivning, så finns vi här och hjälper till.

Vi ser fram emot att höra av dig.

Intresseanmälan

Kontaktinformation

All behandling av personuppgifter sker i enlighet med dataskyddsförordningen och annan dataskyddslagstiftning. Läs mer om GDPR

Liknande lokaler i Göteborg