Gå till huvudinnehåll

Göteborg Centrum

Magasinsgatan 18 A

Kontor

Yta

140 kvm

Arbetsplatser

5 - 10 st

Så räknar vi antal arbetsplatser

Detta spann är en uppskattning. Det finns flera faktorer som påverkar hur många arbetsplatser som kan rymmas i en lokal. Inte bara storleken på själva lokalen utan även hur den disponeras. Exempelvis kräver en lokal med många enskilda kontor mer plats än öppen planlösning. Andra begränsningar kan vara tillgången på luft och kyla, eller utrymningsvägar.

Tillträdesdatum

Enl. ök.

Våningsplan

2

Kontor i cityläge på populära Magasinsgatan!

Välkommen till ert nya kontor! Denna kontorslokal erbjuder en bra kombination av modern design och funktionalitet.

Belägen i ett dynamiskt affärsdistrikt, får du här en förstklassig arbetsmiljö med närhet till stadens puls.
Lokalen har generösa fönster som ger ett härligt ljusinsläpp och en inspirerande utsikt. Med flexibla ytor kan du anpassa kontoret efter dina specifika behov, vilket gör det idealiskt för både små och medelstora företag.

Missa inte chansen att etablera ditt företag på en av stadens mest attraktiva adresser.

Välkommen att kontakta oss redan idag för mer info och visning!

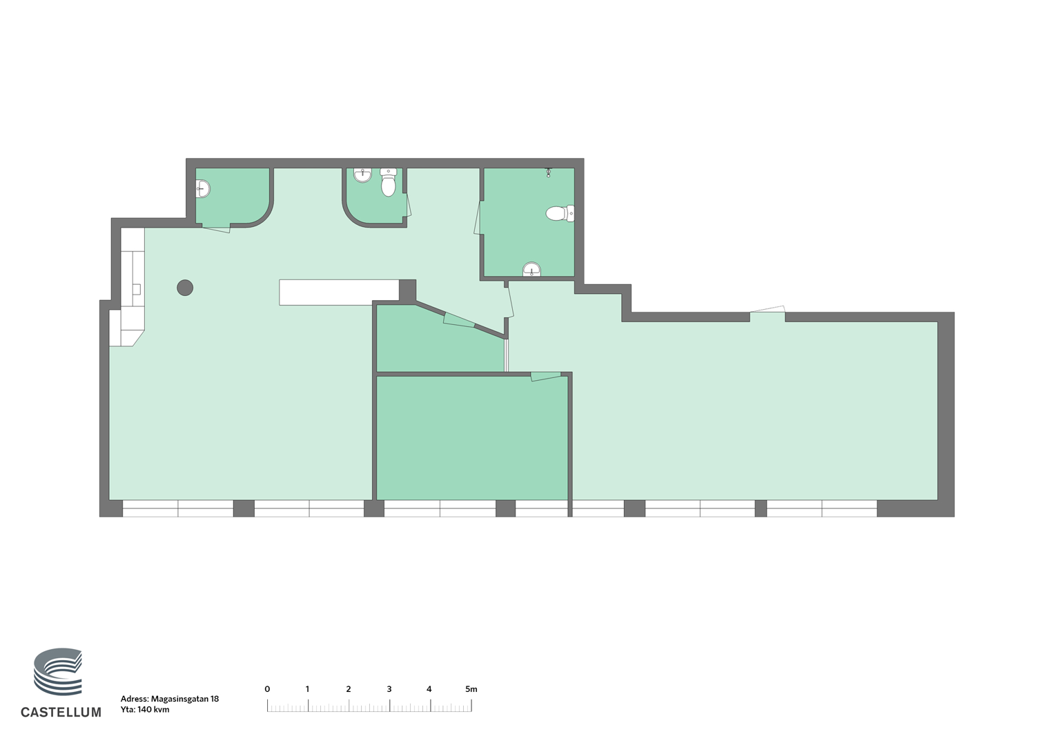
Planlösning

Kontoret har idag en öppen planlösning med ett mötesrum, ett samtalsrum, pentry och två wc varav en med dusch. Hiss finns från markplan.

Området

Att etablera sig i Inom Vallgraven innebär att ta plats i hjärtat av Göteborgs mest dynamiska och eftertraktade affärsområde. Här möts historia, innovation och ett pulserande stadsliv som ger en kombination för att skapa optimala förutsättningar för företag att växa och synas.

Området har under de senaste åren etablerat sig som ett av Göteborgs mest trendmedvetna områden då det blivit en plats där nya idéer får fäste och där företag kan positionera sig i framkant. Kombinationen av historiska miljöer och modern stadsutveckling skapar en autentisk och inspirerande arbetsmiljö som stärker både varumärke och företagskultur.

Kommunikationer

Med ett strategiskt läge i Inom Vallgraven kan man enkelt att ta sig till och från kontoret. Ett av områdets allra starkaste värden är dess goda tillgänglighet.
Precis intill finner du Domkyrkans hållplats, en av stadens mest centrala hållpunkter med flera spårvagns- och busslinjer som passerar kontinuerligt under hela dagen.
På bara några minuters promenad nås knutpunkten Stenpiren, där du också finner ett brett utbud av spårvagns-, buss- och båtlinjer. Härifrån når medarbetare och besökare snabbt hela Göteborgsregionen, från Hisingen till västra skärgården.
För den som pendlar längre sträckor ligger även Göteborgs centralstation inom bekvämt gångavstånd samt nås enkelt via spårvagnen på några få minuter.

Parkering

Inom Vallgraven erbjuder området väl fungerande och flexibla parkeringslösningar som underlättar vardagen för både medarbetare och besökare.
I direkt närhet finns flera parkeringsanläggningar, däribland P-Hus Kungsgaraget, Otterhällegaraget och Pedagogen Parkeringshus. Som tillsammans ger god tillgång till parkering året om. Dessa anläggningar erbjuder smidig in- och utfart samt närhet till stadens viktigaste stråk och kan erbjuda olika parkeringslösningar efter verksamhetens behov gällande både korttids-och långtidsparkering.
För kortare besök finns även ett flertal gatuparkeringar i området kring Magasinsgatan och Kungsgatan, vilket gör det enkelt för kunder och leveranser att snabbt nå verksamheten.

Parkeringsplatser finns att hyra i området Apcoa 08-556 306 70 samt Q-Park 0771-96 90 06.

Service

Kring Magasinsgatan och Kungsgatan har ett av stadens mest levande kvarter vuxit fram. Området präglas av en unik mix av etablerade varumärken, konceptbutiker, restauranger, caféer och kreativa verksamheter. Allt du kan tänka dig.
Detta skapar ett konstant flöde av människor och ger företag en naturlig exponering i vardagen. För verksamheter som värdesätter synlighet, tillgänglighet och ett starkt sammanhang är läget svårslaget.

Fastigheten

Mitt i hjärtat av Göteborg, i det eftertraktade området Inom Vallgraven, finns denna unika och karaktärsfulla fastighet med anor från tidigt 1800-tal. Här möts historisk charm och modern funktionalitet i en av stadens mest levande och attraktiva miljöer.
Fastigheten har ett strategiskt hörnläge vid Magasinsgatan och Kungsgatan, två av Göteborgs mest dynamiska stråk för handel, restaurangliv och service. Läget erbjuder ett starkt kundflöde, utmärkt exponering och närhet till stadens bästa kommunikationer.
Byggnaden omfattar cirka 4 500 kvm och erbjuder en välbalanserad mix av attraktiva butikslokaler i markplan och flexibla kontorsytor i övre plan. De generösa ytorna, tillsammans med fastighetens centrala läge, skapar optimala förutsättningar för såväl etablerade verksamheter som växande företag.
Den historiska karaktären ger fastigheten en tydlig identitet, samtidigt som löpande moderniseringar säkerställer en hög teknisk standard och god hållbarhetsprestanda med miljöcertifieringar.
Resultatet är en fastighet som möter dagens krav utan att förlora sin själ!

  • Mitt i city
  • Anpassningsbar
  • Stadens puls

Faciliteter i fastigheten

Parkering Restaurang

Service i området

Buss Gym Spårvagn

Energi & hållbarhet

  • Certifieringar: LEED O+M, Gold
  • Total energianvändning (2025): 24 kWh/m²
  • Klimatpåverkan: 2,4 kg CO₂e/m² (platsbaserad)

Andra hyresgäster i fastigheten

Inköps- och upphandlingsförvaltningen - SF-Bokhandeln Aktiebolag - Wesslau Söderqvist Advokatbyrå Väst HB - The Uppsala English Bookshop Aktiebolag - Haglöfs AB (Fd A.F. Fashion AB) - Ragtime AB

Karta

Dokument

Kontaktperson

Uthyrare

Denise Ström

Fråga oss!

Nyfiken på den här lokalen? Eller behöver du hjälp att hitta rätt lokal för din verksamhet? Oavsett om du vet exakt vad du söker eller om du behöver rådgivning, så finns vi här och hjälper till.

Vi ser fram emot att höra av dig.

Intresseanmälan

Kontaktinformation

All behandling av personuppgifter sker i enlighet med dataskyddsförordningen och annan dataskyddslagstiftning. Läs mer om GDPR

Liknande lokaler i Göteborg