Gå till huvudinnehåll

Göteborg Lindholmen

Lindholmsallén 9

Kontor

Yta

865 kvm

Arbetsplatser

40 - 50 st

Så räknar vi antal arbetsplatser

Detta spann är en uppskattning. Det finns flera faktorer som påverkar hur många arbetsplatser som kan rymmas i en lokal. Inte bara storleken på själva lokalen utan även hur den disponeras. Exempelvis kräver en lokal med många enskilda kontor mer plats än öppen planlösning. Andra begränsningar kan vara tillgången på luft och kyla, eller utrymningsvägar.

Tillträdesdatum

Enl. ök.

Våningsplan

3

Kontor i bästa läge på Lindholmsallén

Kontorslokal med mycket ljusinsläpp från alla fyra väderstrecken. Lokalen är belägen på plan 3 och nås enkelt via hissen.

De yteffektiva ytor anpassas efter er önskemål och för att optimera er verksamhet och få medarbetarna och kunder att trivas.

I samband med lokalanpassning eller ombyggnad är vår ambition att använda återbrukat material så långt det är möjligt och vi prioriterar hållbarhet för minsta möjliga miljöpåverkan. Vi arbetar aktivt för att göra goda val för miljön och erbjuda klimatsmarta lösningar för våra kunder.

Låter det här som en lokal för er, välkommen att kontakta oss för mer info och visning!

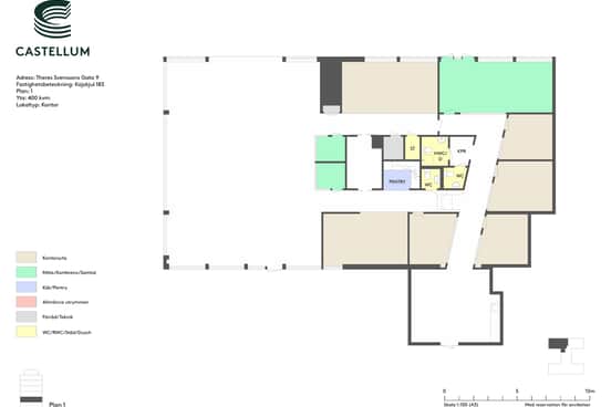
Planlösning

Interörfoto är referensbilder från annan lokal i fastigheten och visar förslag på standard efter anpassning. Planlösningen anpassas efter önskemål.

Området

Mitt i hjärtat av Göteborg växer Lindholmen fram som en av Nordens mest dynamiska stadsdelar – en plats där innovation, hållbarhet och stadsliv möts. Här samlas några av världens ledande företag, forskare och kreativa entreprenörer i en unik miljö som andas utveckling och framtidstro.

Lindholmen är navet i Göteborgs kunskapskluster. Med företag inom tech, mobilitet, media och forskning sida vid sida skapas en levande mötesplats som driver regionens tillväxt framåt. Samtidigt erbjuder området moderna bostäder, restauranger vid vattnet, grönskande promenadstråk och en stadspuls som lockar både boende och besökare.

https://www.lindholmeninnovationdistrict.se/sv

Kommunikationer

Kommunikationerna kring Lindholmsallén 9 är svårslagna. Busshållplatsen Pumpgatan ligger bara cirka 100 meter från fastigheten, och den nya spårvagnslinjen tar er till centralstationen på 6 minuter.

För den som föredrar vattenvägen går gratisfärjor mellan Lindholmspiren, Lundbystrand och Stenpiren mitt i centrala Göteborg – ett snabbt och naturskönt sätt att resa över älven.

Dessutom finns smidig tillgång till E45, E6 och E20 via Lindholmsmotet, vilket gör det enkelt att ta sig vidare både norrut och söderut.

Service

Utbudet av restauranger, butiker och servicefunktioner är stort och ligger inom gångavstånd.

Fastigheten

Mitt i hjärtat av Lindholmen ligger Lindholmsallén 9, en charmig fastighet från 1950-talet med tidstypisk karaktär och modern funktionalitet. Här möter industriell historia framtidens innovationsmiljö, bara minuter från centrala Göteborg.

Fastigheten erbjuder flexibla lokaler med robusta material och ett läge som ger närhet till både Lindholmen Science Park, restauranger och kollektivtrafik.

  • Granne med Karlatornet
  • All service runt hörnet
  • Utforma kontoret som du vill ha det

Service i området

Buss Gym

Energi & hållbarhet

  • Total energianvändning (2025): 17 kWh/m²
  • Klimatpåverkan: 2,7 kg CO₂e/m² (platsbaserad)

Andra hyresgäster i fastigheten

ESAB Aktiebolag - VÄSTRA GÖTALANDSREGIONEN - INTEC Göteborg AB - Nordic Freight & Logistik AB

Karta

Dokument

Kontaktperson

Uthyrare

Mathias Grahn

Fråga oss!

Nyfiken på den här lokalen? Eller behöver du hjälp att hitta rätt lokal för din verksamhet? Oavsett om du vet exakt vad du söker eller om du behöver rådgivning, så finns vi här och hjälper till.

Vi ser fram emot att höra av dig.

Intresseanmälan

Kontaktinformation

All behandling av personuppgifter sker i enlighet med dataskyddsförordningen och annan dataskyddslagstiftning. Läs mer om GDPR

Liknande lokaler i Göteborg