Gå till huvudinnehåll

Stockholm Lunda

Avestagatan 29

Kontor

Yta

110 kvm

Tillträdesdatum

Enl. ök.

Våningsplan

4

Ljus kontorslokal nära pendeltåget

På Avestagatan 29 i Lunda, Spånga hittar du denna trevliga kontorslokal som passar utmärkt för det mindre bolaget som söker en funktionell och välplanerad arbetsmiljö. Lokalen erbjuder en smart och överskådlig planlösning bestående av tre kontorsrum, ett konferensrum, ett förråd samt en öppen yta med pentry som blir en naturlig samlingspunkt för arbetsdagen.

De rumsindelade kontoren är utrustade med glaspartier mot korridoren, vilket både ger en modern känsla och gör att ljuset flödar igenom lokalen. Tillsammans med det extra ljusinsläppet från den angränsande ljusgården skapas en ljus, trivsam och inspirerande arbetsmiljö som lämpar sig för både fokuserat arbete och mindre team.

Lokalen är lätt att anpassa efter verksamhetens behov och lämpar sig väl för företag som värdesätter en kombination av avskildhet, god överblick och ytor för samarbete.

Välkommen på visning!

Planlösning

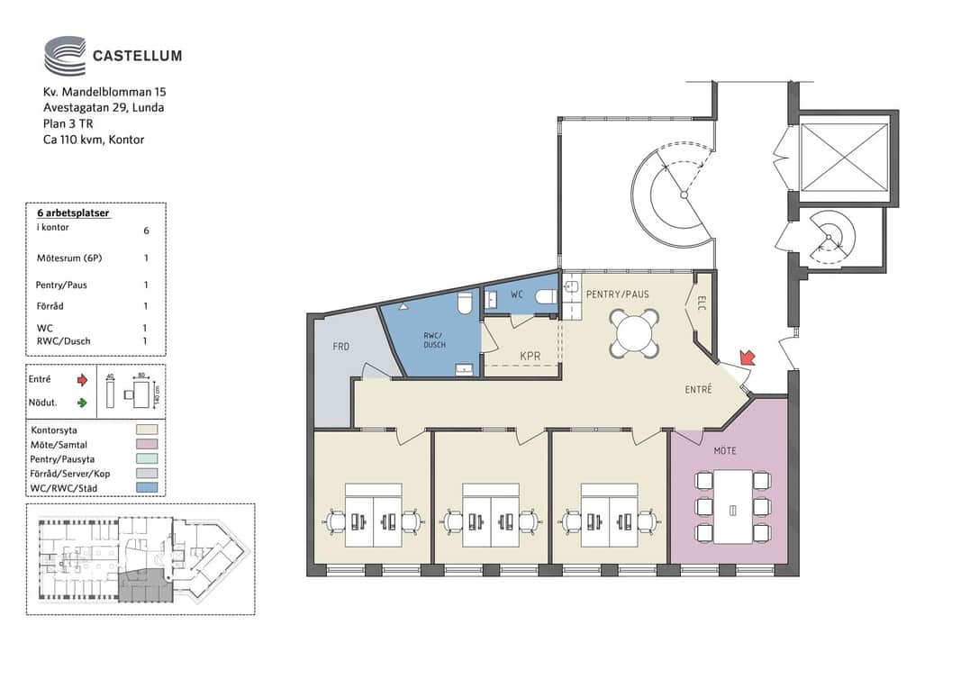
Lokalen om ca 110 kvm (plan 3) har en tydlig och effektiv planlösning med entré som leder in till en öppen gemensam yta. Centralt i lokalen finns ett pentry/pausrum med plats för sittgrupp, vilket skapar en naturlig samlingspunkt för personal och besökare.

Längs fasaden ligger tre separata kontorsrum/arbetsytor med totalt 6 arbetsplatser, fördelade på två platser per rum. Detta ger en bra balans mellan fokusarbete och samarbete, samtidigt som rummen enkelt kan anpassas efter behov.

I anslutning till entrén finns ett mötesrum för upp till 6 personer. Lokalen kompletteras av förråd, en separat WC samt en rymlig RWC med dusch, vilket gör kontoret praktiskt och attraktivt även för den som cyklar eller tränar under arbetsdagen.

Området

Lunda är placerat i nordvästra Stockholm, mellan Barkarby och Spånga. Området har en blandning av bostäder, kontor, logistikfastigheter, samhällsfastigheter såsom utbildning, vård- och omsorg, service och handel. På gångavstånd ligger Spånga och Barkarby Centrum, med en kort bilfärd tar du dig enkelt både till Veddesta Handel och Barkarby Staden med all tänkbar service & handel, IKEA och ett flertal restauranger.
Spånga Sporthall med träningsmöjligheter ligger ett stenkast bort. I närområdet finns även trevliga grönområden.

Kommunikationer

Pendeltåg från Barkarby- eller Spånga station ligger en promenad bort. Bussar från pendeltåg stannar utanför fastigheten. Tunnelbanan till Hjulsta ligger några minuters promenad ifrån.
Det stora lederna E18, E4:an och Bergslagsvägen, ligger i nära anknytning till området, smidigt att ta sig till med fordon. Området kommer att få ett ännu mer attraktivt läge efter att Förbifart Stockholm blir verklighet.

Parkering

Parkeringsplatser finns att hyra intill fastigheten och i området.

Service

Lunda erbjuder ett område med närhet till det mesta!

Fastigheten

Denna kontorsbyggnad uppfördes redan 1950, men genomgick en omfattande ombyggnad 1990.
Fastigheten består av kontor och lager i olika plan. Användningsområdet är idag som kontor, utbildning, vård & omsorg samt viss produktion.

Faciliteter i fastigheten

Sopsortering Parkering

Service i området

Buss Tåg

Energi & hållbarhet

  • Total energianvändning (2025): 8 kWh/m²
  • Klimatpåverkan: 3,53 kg CO₂e/m² (platsbaserad)

Andra hyresgäster i fastigheten

Stockholms kommun - Mandelblomman 15 - KMH TEAM AB - Stockholms Kommun

Karta

Dokument

Kontaktperson

Uthyrare

Alan Badareh Marofi

Fråga oss!

Nyfiken på den här lokalen? Eller behöver du hjälp att hitta rätt lokal för din verksamhet? Oavsett om du vet exakt vad du söker eller om du behöver rådgivning, så finns vi här och hjälper till.

Vi ser fram emot att höra av dig.

Intresseanmälan

Kontaktinformation

All behandling av personuppgifter sker i enlighet med dataskyddsförordningen och annan dataskyddslagstiftning. Läs mer om GDPR

Liknande lokaler i Stockholm