Gå till huvudinnehåll

Örebro Aspholmen

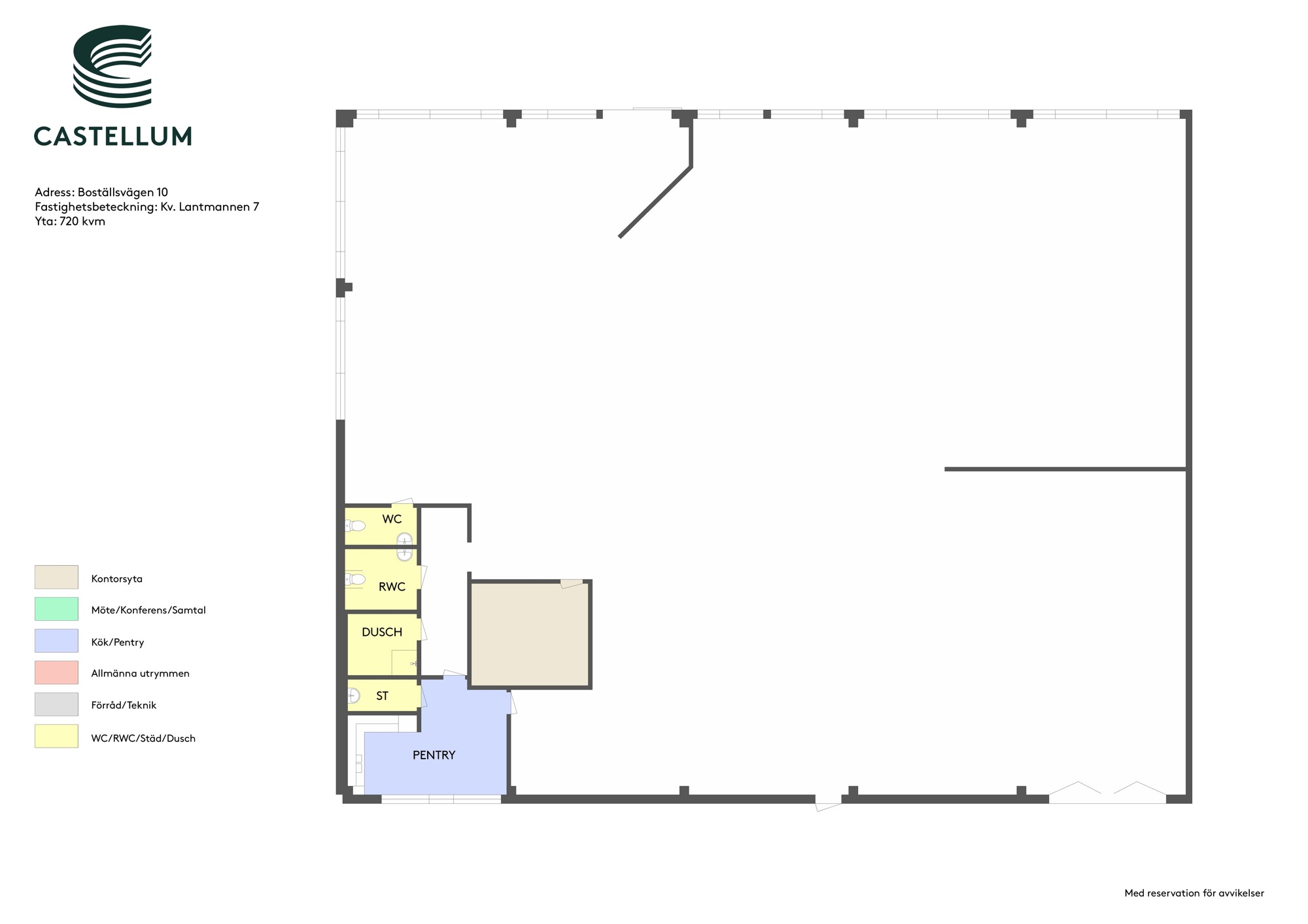
Boställsvägen 10

Butik Lager/Logistik

Yta

720 kvm

Tillträdesdatum

2026-07-01

Våningsplan

1

Flexibel butik- och lagerlokal med utmärkt skyltläge

Letar ni efter en rymlig och lättillgänglig lokal i bästa läge på Aspholmen?
På Boställsvägen 10 finns nu en mångsidig lokal om cirka 720 kvadratmeter – tidigare känd som SIBA-lokalen.

Här finns gott om parkeringsmöjligheter direkt utanför entrén, vilket gör det enkelt för både kunder och personal att ta sig till och från fastigheten.

Läget på Aspholmen ger dessutom ett utmärkt skyltläge och närhet till både E18/E20 och centrala Örebro.

Det här är en lokal som kombinerar funktion, tillgänglighet och exponering – perfekt för företag som vill ta nästa steg i en attraktiv och vältrafikerad del av Örebro.

Kontakta mig för mer information eller visning!

Planlösning

Lokalen erbjuder stora, öppna ytor med bra takhöjd och flexibilitet, vilket gör den idealisk för verksamheter som söker en kombination av lager, showroom, butik eller kontorsyta.

På baksidan finns en stor port som underlättar in- och utlastning.
Lokalen har dessutom personalutrymmen med omklädningsrum, dusch och wc, vilket gör den väl anpassad även för verksamheter med daglig drift på plats.
Entrén har automatiska skjutdörrar och ett generöst ljusinsläpp som skapar en välkomnande känsla för besökare.

Området

Aspholmen är ett av Örebros snabbast växande områden och det är inte undra på. Här har du allt du behöver för att lösa det där kluriga vardagspusslet. Vill du uträtta ärenden eller träna under lunchen? Här finns ett varierat utbud av butiker och träningsanläggningar, som till exempel gym, padel, bowling, simulatorgolf, simhall och massage. För den hungriga finns också mycket att välja på, allt från sallader och husmanskost till kebab och italienskt. Och varför inte passa på att köpa fredagsgodis eller fika till konferensen?
Du tar dig enkelt hit, enkelt ut på E18/E20 och enkelt in till stan.

Kommunikationer

Tack vare närheten till E18/E20 tar du dig snabbt in och ut ur området. Området ligger både smart och centralt, oavsett om du tar dig hit med buss, bil eller varför inte cykel? En fin och nyrenoverad cykelbana löper hela vägen in till city.

Parkering

På Aspholmen är det lätt att parkera bilen, här finns gott om p-platser i hela området. Urladdat batteri eller tom tank? Inga problem, här har du nära till såväl laddstolpar som bensinstationer.

Fastigheten

I fastigheten finns butiks-, kontors- och lagerlokaler.
Förnyelsebar fjärrvärme och grön el.

  • Stora flexibla ytor
  • Skyltläge
  • Lättilgängligt

Faciliteter i fastigheten

Omklädningsrum Lastport Parkering Skyltläge Skyltfönster

Service i området

Buss Parkering Restaurang Café

Energi & hållbarhet

  • Total energianvändning (2025): 6 kWh/m²
  • Klimatpåverkan: 2,57 kg CO₂e/m² (platsbaserad)

Andra hyresgäster i fastigheten

SweProd Graphics AB - Mobilect AB - Scandinavianluxepool AB - Hemmastadd AB - Bageri Bullvivan AB - Golvcenter - BEC, Binary

Karta

Dokument

Kontaktperson

Kommersiell Förvaltare

Magnus Persson

Fråga oss!

Nyfiken på den här lokalen? Eller behöver du hjälp att hitta rätt lokal för din verksamhet? Oavsett om du vet exakt vad du söker eller om du behöver rådgivning, så finns vi här och hjälper till.

Vi ser fram emot att höra av dig.

Intresseanmälan

Kontaktinformation

All behandling av personuppgifter sker i enlighet med dataskyddsförordningen och annan dataskyddslagstiftning. Läs mer om GDPR

Ett eget husteam ingår i hyran

Som hyresgäst hos oss får ni ett lokalt husteam som ser till att ni trivs och att allt fungerar som det ska. Vi hjälper till med allt från fastighetsskötsel och energioptimering till skyltning och parkering. Ingen fråga är för stor eller för liten. Och skulle era behov förändras brukar vi alltid kunna erbjuda en lösning, vad det än gäller. Varmt välkommen till en värd bortom det förväntade.

Liknande lokaler i Örebro