Gå till huvudinnehåll

Örebro Aspholmen

Elementvägen 14

Kontor

Yta

297 kvm

Arbetsplatser

8 - 15 st

Så räknar vi antal arbetsplatser

Detta spann är en uppskattning. Det finns flera faktorer som påverkar hur många arbetsplatser som kan rymmas i en lokal. Inte bara storleken på själva lokalen utan även hur den disponeras. Exempelvis kräver en lokal med många enskilda kontor mer plats än öppen planlösning. Andra begränsningar kan vara tillgången på luft och kyla, eller utrymningsvägar.

Tillträdesdatum

Enl. ök.

Våningsplan

1

Generös kontorslokal med lättillgängligt läge

Här erbjuds en fantastisk möjlighet att etablera er verksamhet på Aspholmen. Denna lokal är utrustad med generösa sällskapsytor där du och dina kollegor kan koppla av och samarbeta i en trivsam atmosfär. Samtidigt finns möjligheten att arbeta ostört i lugn och ro inne i de privata kontoren. Behöver ni extra utrymme så erbjuds här även lager och förrådsyta. Här finns dessutom goda parkeringsmöjligheter samt möjlighet till laddstolpar!

För den som prioriterar hälsan och välmåendet erbjuder området möjlighet att träna på lunchen, med närhet till både gym och padel. Här finns även närhet till lunchrestauranger för er som kanske väljer att hoppa över matlådan en fredag.

Varmt välkomna att kontakta oss för mer information och visning!

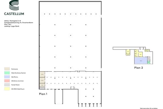
Planlösning

Generöst med pausyta med tillhörande pentry, konferensrum, 8 kontorsrum med tillhörande lager/förrådsyta.

Området

Aspholmen är ett av Örebros snabbast växande områden och det är inte undra på. Här har du allt du behöver för att lösa det där kluriga vardagspusslet. Vill du uträtta ärenden eller träna under lunchen? Här finns ett varierat utbud av butiker och träningsanläggningar, som till exempel gym, padel, bowling, simulatorgolf, simhall och massage. För den hungriga finns också mycket att välja på, allt från sallader och husmanskost till kebab och italienskt. Och varför inte passa på att köpa fredagsgodis eller fika till konferensen?
Du tar dig enkelt hit, enkelt ut på E18/E20 och enkelt in till stan.

Kommunikationer

Tack vare närheten till E18/E20 tar du dig snabbt in och ut ur området. Området ligger både smart och centralt, oavsett om du tar dig hit med buss, bil eller varför inte cykel? En fin och nyrenoverad cykelbana löper hela vägen in till city.

Parkering

På Aspholmen är det lätt att parkera bilen, här finns gott om p-platser i hela området. Urladdat batteri eller tom tank? Inga problem, här har du nära till såväl laddstolpar som bensinstationer.

Fastigheten

I fastigheten finns butiks- och kontorslokaler.
Förnyelsebar fjärrvärme och grön el.

  • Lättillgängligt läge
  • Goda parkeringsmöjligheter
  • Egen entré

Faciliteter i fastigheten

Parkering Elbilsladdning Restaurang

Service i området

Buss Gym

Energi & hållbarhet

  • Certifieringar: LEED O+M, Gold
  • Total energianvändning (2025): 20 kWh/m²
  • Klimatpåverkan: 1,06 kg CO₂e/m² (platsbaserad)

Andra hyresgäster i fastigheten

HSB Mälardalarna EK FÖR - Svetsaren 5 - Hermods AB - CSM NDT Certification Aktiebolag - VVS-Bröderna Örebro AB - Ångtvättbilen AB - Koncepta

Karta

Dokument

Kontaktperson

Kommersiell Förvaltare

Reynolds Ndugwa Kigula

Fråga oss!

Nyfiken på den här lokalen? Eller behöver du hjälp att hitta rätt lokal för din verksamhet? Oavsett om du vet exakt vad du söker eller om du behöver rådgivning, så finns vi här och hjälper till.

Vi ser fram emot att höra av dig.

Intresseanmälan

Kontaktinformation

All behandling av personuppgifter sker i enlighet med dataskyddsförordningen och annan dataskyddslagstiftning. Läs mer om GDPR

Liknande lokaler i Örebro