Gå till huvudinnehåll

Örebro Aspholmen

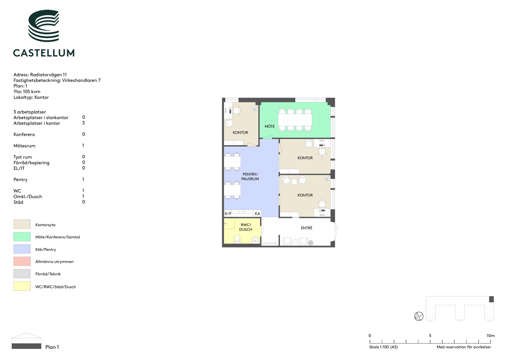
Radiatorvägen 11

Kontor

Yta

105 kvm

Arbetsplatser

6 st

Så räknar vi antal arbetsplatser

Detta spann är en uppskattning. Det finns flera faktorer som påverkar hur många arbetsplatser som kan rymmas i en lokal. Inte bara storleken på själva lokalen utan även hur den disponeras. Exempelvis kräver en lokal med många enskilda kontor mer plats än öppen planlösning. Andra begränsningar kan vara tillgången på luft och kyla, eller utrymningsvägar.

Tillträdesdatum

2027-09-01

Våningsplan

1

Mindre kontor i strategiskt läge

Nu finns det en ledig lokal på populära Aspholmen!

Kontoret passar bra för mindre företag som vill ha flera avskilda arbetsrum, till exempel konsultverksamhet, administration, projektorganisationer eller andra kontorsbaserade verksamheter som uppskattar lugn och struktur i vardagen.
Det är även perfekt om ni är beroende av att åka bil då parkeringar finns precis utanför.

På Radiatorvägen ligger många andra verksamheter tätt, och förbindelsen till city är enkel.

Vill du veta mer om lokalen och hur den kan fungera för ditt företag är du välkommen att höra av dig, så berättar vi mer och bokar en visning.

Planlösning

Lokalen om 105 kvadratmeter är uppdelad i fyra kontorsrum. Ett av rummen kan användas som mötesrum eller konferensrum, vilket ger en praktisk uppdelning mellan arbete och möten.
Om ditt företag har behov av en annan rumsfunktion kan du också låta ett av kontoren bli till exempel projektrum, samtalsrum eller ett mindre showroom, beroende på verksamhet.

Pentry med tillhörande lunchyta ligger utanför kontoren och bjuder in till sociala sammanhang.

Här får du även en rymlig WC som är tillgänglighetsanpassad och kombinerad med en dusch.

Området

Aspholmen är ett av Örebros snabbast växande områden och det är inte undra på. Här har du allt du behöver för att lösa det där kluriga vardagspusslet. Vill du uträtta ärenden eller träna under lunchen? Här finns ett varierat utbud av butiker och träningsanläggningar, som till exempel gym, padel, bowling, simulatorgolf, simhall och massage. För den hungriga finns också mycket att välja på, allt från sallader och husmanskost till kebab och italienskt. Och varför inte passa på att köpa fredagsgodis eller fika till konferensen?
Du tar dig enkelt hit, enkelt ut på E18/E20 och enkelt in till stan.

Kommunikationer

Tack vare närheten till E18/E20 tar du dig snabbt in och ut ur området. Området ligger både smart och centralt, oavsett om du tar dig hit med buss, bil eller varför inte cykel? En fin och nyrenoverad cykelbana löper hela vägen in till city.

Parkering

På Aspholmen är det lätt att parkera bilen, här finns gott om p-platser i hela området. Urladdat batteri eller tom tank? Inga problem, här har du nära till såväl laddstolpar som bensinstationer.

Fastigheten

I fastigheten finns butiks-, kontors- och lagerlokaler.
Förnyelsebar fjärrvärme och grön el.

  • Funktionell
  • Parkering
  • Nära till city och resten av Aspholmen

Faciliteter i fastigheten

Parkering

Service i området

Buss Parkering Restaurang Café Shopping Elbilsladdning Grönområde

Energi & hållbarhet

  • Total energianvändning (2025): 13 kWh/m²
  • Klimatpåverkan: 2,54 kg CO₂e/m² (platsbaserad)

Andra hyresgäster i fastigheten

Nordlo - SITECH Sverige - Avarn Security - Avonova Hälsa AB - Kiwa Sweden AB - Virkeshandlaren 7 - Björnberg IT Partner - Epiroc Sweden AB - Novatic Industrial AB - A Hub, A-hub - ASSA ABLOY Entrance Systems Sweden AB - Account Ekonomipartner AB - EBAB - Fronta - Arkeologgruppen i Örebro AB - Konecranes AB - Virkeshandlaren 7 - Fiskarhedenvillan - ECAB Ekonomicentra AB - MOBA Sweden AB - ADK Tjänst AB - Blomés Eltjänst AB - Köksteam Riab AB - Härjedals Kök AB - Assemblin El AB

Karta

Dokument

Kontaktperson

Kommersiell Förvaltare

Reynolds Ndugwa Kigula

Fråga oss!

Nyfiken på den här lokalen? Eller behöver du hjälp att hitta rätt lokal för din verksamhet? Oavsett om du vet exakt vad du söker eller om du behöver rådgivning, så finns vi här och hjälper till.

Vi ser fram emot att höra av dig.

Intresseanmälan

Kontaktinformation

All behandling av personuppgifter sker i enlighet med dataskyddsförordningen och annan dataskyddslagstiftning. Läs mer om GDPR

Ett eget husteam ingår i hyran

Som hyresgäst hos oss får ni ett lokalt husteam som ser till att ni trivs och att allt fungerar som det ska. Vi hjälper till med allt från fastighetsskötsel och energioptimering till skyltning och parkering. Ingen fråga är för stor eller för liten. Och skulle era behov förändras brukar vi alltid kunna erbjuda en lösning, vad det än gäller. Varmt välkommen till en värd bortom det förväntade.

Liknande lokaler i Örebro