Gå till huvudinnehåll

Jönköping Ljungarums Industriområde

Granitvägen 11

Kontor Lager/Logistik

Hyresindikation

Från 39 000 kr/mån

Detaljerad hyresinformation

2000 kr/kvm
Driftkostnader ca pris 200 kr/kvm (inkluderar vatten, värme, ventilation, avfall, el på avräkning)
Fastighetsskatt: 38 kr/kvm

Yta

233 - 234 kvm

Tillträdesdatum

Enl. ök.

Våningsplan

1

Välplanerad kontorslokal i strategiskt läge nära E4 och centrum

Nu finns möjlighet att hyra en välplanerad och nyligen anpassad kontorslokal på attraktiva Gamla Flygfältet i Jönköping. Här sitter ni med ett strategiskt läge endast cirka 5 minuter från centrum och 2–3 minuter till E4, vilket ger smidig tillgänglighet för både personal, kunder och transporter.

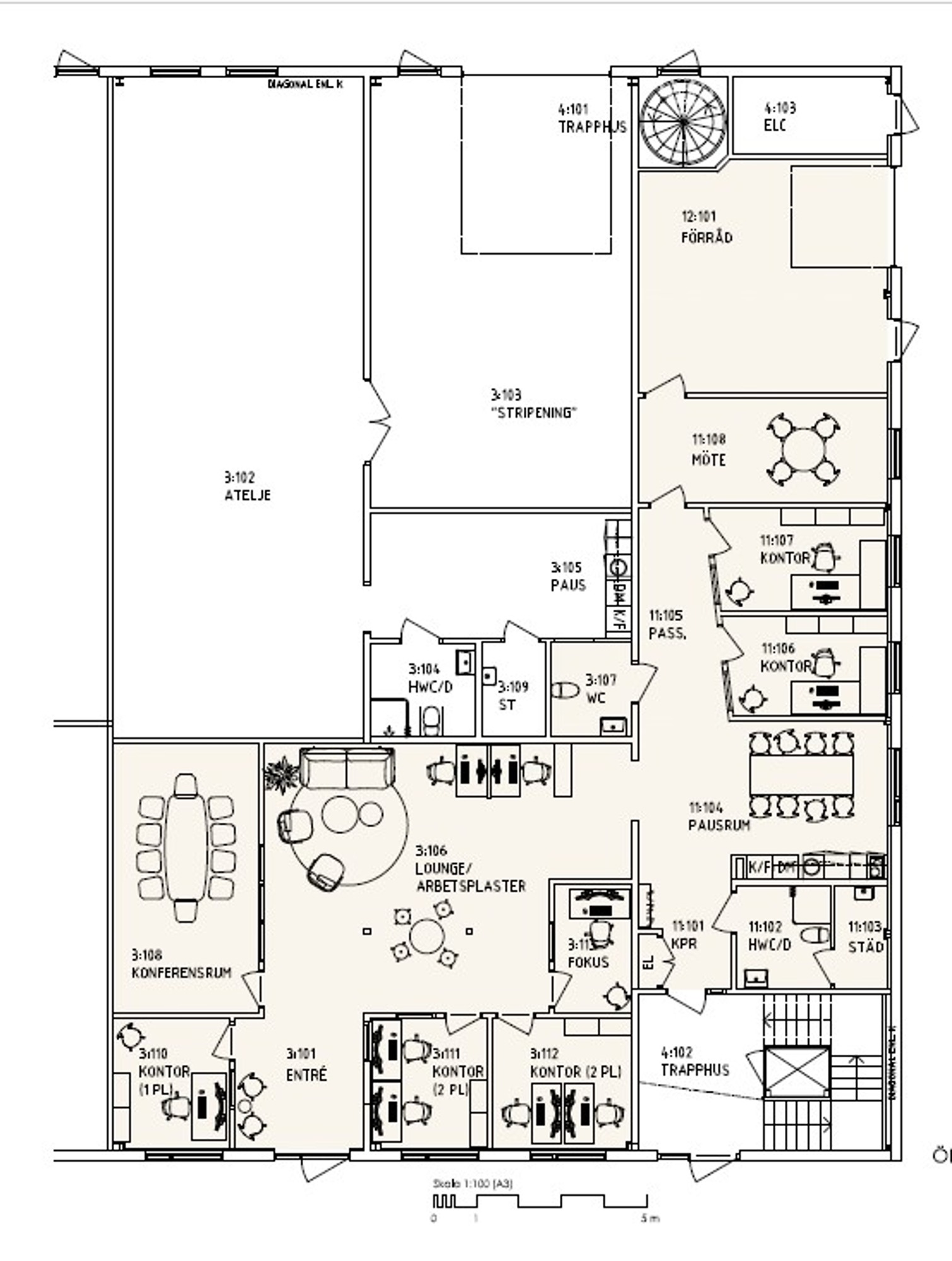
Lokalen erbjuder fem separata cellkontor, ett mindre mötesrum, ett konferensrum samt en öppen kontorsyta som passar bra för flera arbetsplatser. Utöver detta finns förråd och ett mindre lager med port, vilket skapar goda möjligheter för verksamheter med behov av både kontor och lageryta.

I lokalen finns även kök/pentry med loungeyta, WC samt RWC med dusch. Lokalen är nyligen anpassad åt tidigare hyresgäst och håller en modern och funktionell standard.

Goda parkeringsmöjligheter finns i direkt anslutning till fastigheten med gratis parkering och gott om platser.

I området finns flera etablerade företag som grannar, bland annat Sonepar, Cramo med flera.

Planlösning

5 cellkontor
1 mindre mötesrum
1 konferensrum
1 öppen kontorsyta
1 förråd
1 mindre lager med port
1 WC
1 RWC med dusch
Kök/pentry med loungeyta

Området

Fastigheten är belägen på Ljungarums industriområde med närhet både till Jönköping city och Solåsens centrum. Området inrymmer handel, tjänsteproducerande företag, lättare industri och restauranger.

Kommunikationer

Utmärkta vägförbindelser till E4:an, centrum och Asecs. Goda bussförbindelser med centrum.

Parkering

Parkeringsplatser till husets hyresgäster och dess besökare finns i anslutning till fastigheten.

Fastigheten

Fastigheten är belägen på Ljungarums industriområde. Med sitt centralt belägna läge är fastigheten lättillgänglig. Den rymmer en mix av tjänsteproducerande företag, lagerlokaler och kontor.

  • Närhet till E4 och city
  • Lager med port
  • Gratis parkering

Energi & hållbarhet

  • Total energianvändning (2025): 9 kWh/m²
  • Klimatpåverkan: 6,62 kg CO₂e/m² (platsbaserad)

Andra hyresgäster i fastigheten

Axima AB - Elektroskandia Sverige AB- Örontofsen 5 - Malmixx Projekt AB-Örontofsen 5 - Skjutebo Kraft AB - Rekogruppen - Småländska Städaktiebolaget - Ringvall Reklam Aktiebolag - Fredrik Erlandssons Åkeri AB - Energigruppen i Jönköping AB

Karta

Dokument

Kontaktperson

Kommersiell Förvaltare

Jonas Larsson

Fråga oss!

Nyfiken på den här lokalen? Eller behöver du hjälp att hitta rätt lokal för din verksamhet? Oavsett om du vet exakt vad du söker eller om du behöver rådgivning, så finns vi här och hjälper till.

Vi ser fram emot att höra av dig.

Intresseanmälan

Kontaktinformation

All behandling av personuppgifter sker i enlighet med dataskyddsförordningen och annan dataskyddslagstiftning. Läs mer om GDPR

Liknande lokaler i Jönköping