Gå till huvudinnehåll

Göteborg Partille

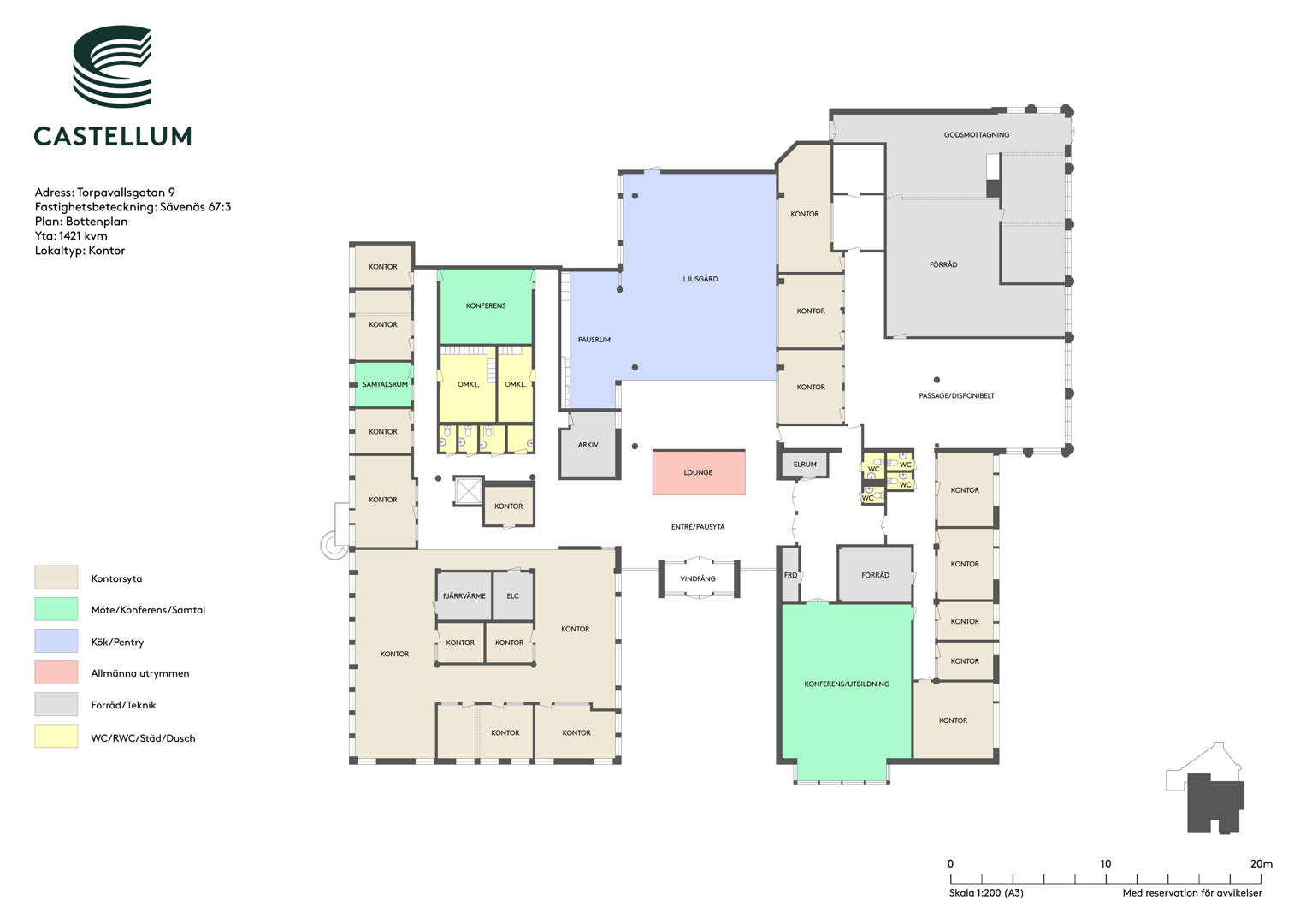
Torpavallsgatan 9

Kontor

Yta

1 421 kvm

Arbetsplatser

25 - 50 st

Så räknar vi antal arbetsplatser

Detta spann är en uppskattning. Det finns flera faktorer som påverkar hur många arbetsplatser som kan rymmas i en lokal. Inte bara storleken på själva lokalen utan även hur den disponeras. Exempelvis kräver en lokal med många enskilda kontor mer plats än öppen planlösning. Andra begränsningar kan vara tillgången på luft och kyla, eller utrymningsvägar.

Tillträdesdatum

Enl. ök.

Våningsplan

0

Kontor i bra läge nära stora lederna och köpcentrum

Stort kontor i bra läge nära E20, E6 och E45 och tolv minuters bilfärd från Avenyn. Passande för exempelvis konsultverksamhet eller verksamhet med besökare. Vid behov tittar vi på en anpassning tillsammans med er. När vi gör våra anpassningar försöker vi alltid ha återbruk och hållbarhet i åtanke. Vi har tät kontakt med er, arkitekt och projektledare. Parkering finns i anslutning till fastigheten liksom närhet till kollektivtrafik.

Välkommen att kontakta oss för mer info och visning!

Planlösning

Blandad planlösning med öppen pausyta i stort atrium centralt i lokalen. God variation mellan mindre enskilda kontorsrum, större kontorsyta för flera arbetsplatser, flera mötesrum samt ett stort konferensrum.

Området

Närhet till natursköna Skatås och Härlandatjärns friluftsområden för utomhusträning och promenader. SATS har en nybyggd stor träningsanläggning. Det finns en stor livsmedelshall i form av ICA Maxi i övrigt finns restauranger, systembolag, Mekonomen, hotell med mera.

Kommunikationer

Goda kommunikationer både med buss, spårvagn och bil då man snabbt kommer ut på de större lederna E20, E6 och E45.

Service

All tänkbar service finns i närområdet.

Fastigheten

Modern och representativ fastighet i toppenläge med god service i området.

  • Modernt kontor
  • Mycket ljusinsläpp
  • Gym i huset

Faciliteter i fastigheten

Parkering

Service i området

Restaurang Spårvagn

Energi & hållbarhet

  • Certifieringar: LEED O+M, Gold
  • Total energianvändning (2025): 21 kWh/m²
  • Klimatpåverkan: 2,85 kg CO₂e/m² (platsbaserad)

Andra hyresgäster i fastigheten

VÄSTRA GÖTALANDSREGIONEN - Ford Sweden Parts Operations AB

Karta

Dokument

Kontaktperson

Uthyrare

Ylva Brodin

Fråga oss!

Nyfiken på den här lokalen? Eller behöver du hjälp att hitta rätt lokal för din verksamhet? Oavsett om du vet exakt vad du söker eller om du behöver rådgivning, så finns vi här och hjälper till.

Vi ser fram emot att höra av dig.

Intresseanmälan

Kontaktinformation

All behandling av personuppgifter sker i enlighet med dataskyddsförordningen och annan dataskyddslagstiftning. Läs mer om GDPR

Ett eget husteam ingår i hyran

Som hyresgäst hos oss får ni ett lokalt husteam som ser till att ni trivs och att allt fungerar som det ska. Vi hjälper till med allt från fastighetsskötsel och energioptimering till skyltning och parkering. Ingen fråga är för stor eller för liten. Och skulle era behov förändras brukar vi alltid kunna erbjuda en lösning, vad det än gäller. Varmt välkommen till en värd bortom det förväntade.

Liknande lokaler i Göteborg