Gå till huvudinnehåll

Stockholm Sollentuna

Sofielundsvägen 4

Kontor

Hyresindikation

27 000 kr/mån

Detaljerad hyresinformation

Bashyra

Yta

146 kvm

Tillträdesdatum

Enl. ök.

Våningsplan

0

Lokal för det mindre bolget intill Sollentuna Centrum

Välkommen till denna trivsamma och välplanerade lokal på markplan, strategiskt placerad med närhet till Sollentuna Centrum och goda kommunikationer.

Lokalen är idealisk för mindre företag, mottagningar eller olika serviceverksamheter som värdesätter en funktionell arbetsmiljö i en ljus och tillgänglig miljö. Med en flexibel planlösning som enkelt kan anpassas efter verksamhetens behov erbjuder denna lokal både effektivitet och trivsel.

Kontakta oss gärna för mer information eller för att boka en personlig visning – en möjlighet du inte vill missa!

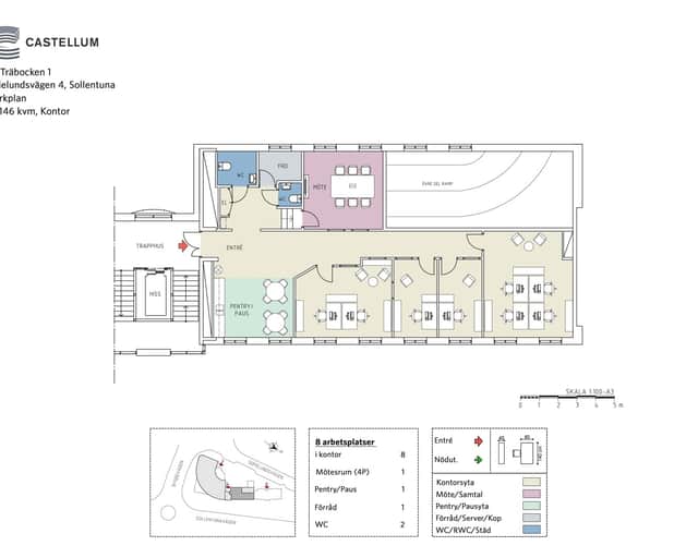
Planlösning

Denna kontorslokal om cirka 146 kvm på markplan har en öppen och funktionell planlösning med åtta arbetsplatser fördelade på både öppna ytor och separata rum, samt ett mötesrum för fyra personer. Centralt finns ett pentry och pausyta, medan två WC samt ett förråd bidrar till god bekvämlighet och praktisk funktionalitet.

Området

Området är på en gång centralt som nära till naturen och Sollentunas centrum. Här finns både företag och trevliga bostadsområden vilket gör det enkelt att komma ut på en skön lunchpromenad i gröna lugna kvarter.

Kommunikationer

Bra kommunikationer med pendeltåg från Sollentuna Centrum och bussar som tar dig runt i Sollentuna och till grannkommunerna.

Service

Det mesta hittar du på gångavstånd. Sollentuna Centrum ligger endast 350 m bort och här hittar du all tänkbar närservice, butiker, mode, restauranger och så klart gott kaffe

Fastigheten

Kontorsfastighet vid Sollentuna Centrum.

  • Intill Sollentuna Centrum
  • Perfekt för det mindre bolaget
  • Goda kommunikationer

Faciliteter i fastigheten

Omklädningsrum Parkering Garage

Service i området

Buss Restaurang Café Tåg Shopping

Energi & hållbarhet

  • Certifieringar:
  • Total energianvändning (2025): 40 kWh/m²
  • Klimatpåverkan: 6,58 kg CO₂e/m² (platsbaserad)

Andra hyresgäster i fastigheten

Nordea Bank Abp, filial i Sverige - Träbocken 1 - Swedbank AB - Träbocken 1 - ASMPT Sweden AB - Installationsgruppen i Stockholm AB - Anooni AB - AKG Sverige AB - Träbocken 1 - Missing People Sweden

Karta

Dokument

Kontaktperson

Uthyrare

Rolf Marias

Fråga oss!

Nyfiken på den här lokalen? Eller behöver du hjälp att hitta rätt lokal för din verksamhet? Oavsett om du vet exakt vad du söker eller om du behöver rådgivning, så finns vi här och hjälper till.

Vi ser fram emot att höra av dig.

Intresseanmälan

Kontaktinformation

All behandling av personuppgifter sker i enlighet med dataskyddsförordningen och annan dataskyddslagstiftning. Läs mer om GDPR

Ett eget husteam ingår i hyran

Som hyresgäst hos oss får ni ett lokalt husteam som ser till att ni trivs och att allt fungerar som det ska. Vi hjälper till med allt från fastighetsskötsel och energioptimering till skyltning och parkering. Ingen fråga är för stor eller för liten. Och skulle era behov förändras brukar vi alltid kunna erbjuda en lösning, vad det än gäller. Varmt välkommen till en värd bortom det förväntade.

Liknande lokaler i Stockholm