Gå till huvudinnehåll

Stockholm Södertälje

Gränsbovägen 8

Industri Lager/Logistik

Yta

2 574 kvm

Tillträdesdatum

Enl. ök.

Unik industrifastighet nära E4:an

Välkommen till denna välplanerade lager- och produktionslokal om ca 2 574 kvm, strategiskt placerad i ett attraktivt industriområde på Gränsbovägen 8 i Södertälje. Här erbjuds generösa ytor, smidig access via lastkaj och en mycket funktionell planlösning – perfekt för verksamheter med fokus på logistik, lager, tillverkning eller distribution.

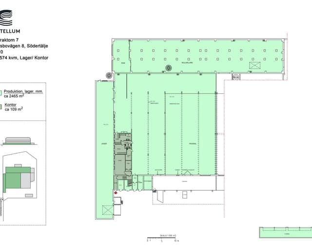
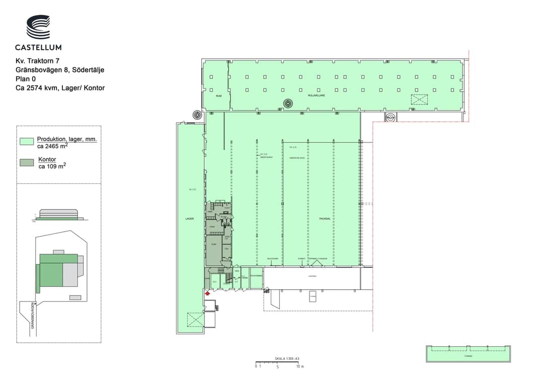
Ytor och planlösning

Enligt ritningen omfattar lokalen:

Produktion/lager: ca 2 465 kvm
Stora, öppna ytor med hög takhöjd och god tillgänglighet för trucktrafik. Planlösningen möjliggör effektiv hantering av gods och materialflöden, med flera portar i anslutning till lastkaj.

Kontor: ca 109 kvm
Praktiska kontors- och personalutrymmen med omklädningsrum, pausutrymme och administrativa ytor – direkt integrerade med lagret.

Den rektangulära utformningen och de fria ytorna gör lokalen lätt att anpassa efter verksamhetens behov.

Teknisk standard och specifikationer

Takhöjd om ca 5m.

Elkapacitet: kraftfull 3 000 A

Bärighet: robust golvkonstruktion för tung industri och trucktrafik

Lastning: lastkaj med flera lastportar, vilket ger snabb och effektiv godshantering

Tillgång: direkt anslutning till plan 1 via internkoppling möjlig

Läge och kommunikationer

Fastigheten ligger med nära anslutning till E4:an, vilket ger utmärkta transportmöjligheter både norrut mot Stockholm och söderut mot Nyköping och vidare södra Sverige.
Området är väletablerat och industriellt präglat med stabil infrastruktur. Här finns goda grannar som Ramirent, Swedol och Autoexperten, vilket stärker områdets attraktionskraft.

Sammanfattning

Detta är en funktionell, modern och lättillgänglig lager- och produktionslokal som erbjuder allt man kan önska i fråga om logistik, kapacitet och läge. Med sina höga tekniska standarder och flexibla ytor är detta en lokal som passar både etablerade aktörer och expansiva företag.

Planlösning

Lager och produktion är till den större del beläget på bottenplan med mindre servicekontor för arbetsplatser eller möjligt konferensrum och två separata omklädningsrum med dusch och 2 stycken wc. På plan 1 finns resterande lagerytor och ett större kontor med 11 stycken kontorsrum, ett större konferensrum, två separata omklädningsrum med bastu och 2 stycken duschar i vardera omklädningsrum, 5 stycken wc varav en styck RWC samt ljust och trevligt pentry/ pausutrymme med terrass. Kontorsdelen är beläget en trappa upp med mixad planlösning för arbetsplatser i ett öppet landskap samt ett antal enskilda kontorsrum. Här finns också större pentry med en trevlig terrass att kunna avnjuta sin lunch på.

Området

Fastigheten Traktorn 7 är en industri/lager lokal belägen i Södertälje. Södertälje är beläget mellan Strängnäs, Nyköping och Stockholm. Alltså enkelt att pendla från många olika håll

Kommunikationer

Kommunikationen i Södertälje består av både buss och pendeltåg. Det tar ca 45 minuter från Stockholm city. Inte långt från fastigheten svänger man av från Södertäljevägen. Vilket gör det snabbt och smidigt för de som vill köra bil.

Bussar nr 760 ,761 går från Södertälje och smidigt tar dig till Moraberg.

Fastigheten

Fastigheten är en industrifastighet belägen strax utanför Södertälje i Moraberg. Den ligger nära E4:an med bra skyltläge och är en singel fastighet med inhägnat markområde.


Bärighet:
Terassbjälklag: 10 kN/kvm
Golv i ställverk: 5 kN/kvm
Golv i presshall: 15 kN/kvm
Golv i manöverrum: 5 kN/kvm (tillika kontorsytorna och omklädningsrum på plan 1)
Golv i fläktrum: 5 kN/kvm

Byggnadsbeskrivning

Stomme: Stål och betong
Fasader: Tegel och puts
Yttertak: Papp
Uppvärmning: Luftburen fjärrvärme
Ventilation: Mekanisk till- och frånluft med värmeåtervinning och kyla

  • Hög bärighet
  • Lastkaj med höj- sänkbara lyftbord
  • Takhöjd om 15,7 meter

Faciliteter i fastigheten

Skyltläge

Service i området

Buss Tåg

Energi & hållbarhet

  • Total energianvändning (2025): 23 kWh/m²
  • Klimatpåverkan: 1,87 kg CO₂e/m² (platsbaserad)

Andra hyresgäster i fastigheten

Quatra Sweden AB

Karta

Dokument

Kontaktperson

Uthyrare

Alan Badareh Marofi

Fråga oss!

Nyfiken på den här lokalen? Eller behöver du hjälp att hitta rätt lokal för din verksamhet? Oavsett om du vet exakt vad du söker eller om du behöver rådgivning, så finns vi här och hjälper till.

Vi ser fram emot att höra av dig.

Intresseanmälan

Kontaktinformation

All behandling av personuppgifter sker i enlighet med dataskyddsförordningen och annan dataskyddslagstiftning. Läs mer om GDPR

Liknande lokaler i Stockholm