Gå till huvudinnehåll

Stockholm Södertälje

Gränsbovägen 8

Industri Lager/Logistik

Yta

1 854 kvm

Tillträdesdatum

Enl. ök.

Lager- och kontorslokal med starkt logistiskt läge

Lager- och kontorslokal med starkt logistiskt läge – Gränsbovägen 8, Södertälje

Välkommen till denna moderna lager- och kontorslokal om ca 1 854 kvm i ett väletablerat industriområde på Gränsbovägen 8 i Södertälje. Lokalen erbjuder flexibla ytor för både produktion, lager och kontor, med direkt access via lastportar och närhet till E4:an – perfekt för verksamheter med höga krav på logistik och tillgänglighet.

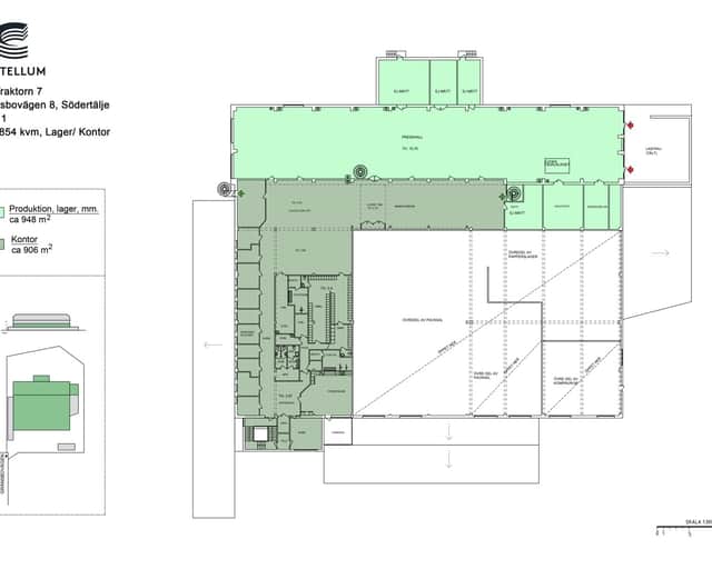
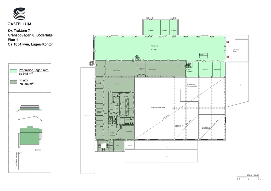
Ytor och planlösning

Enligt ritningen omfattar lokalen totalt ca 1 854 kvm fördelat på:

Produktion/lager: ca 948 kvm – rymlig yta med god takhöjd, perfekt för effektiv logistik eller lätt industri

Kontor: ca 906 kvm – moderna kontorsutrymmen med flera rum, pausutrymmen och gemensamma ytor för personal

Layouten möjliggör en naturlig koppling mellan lager och kontor, vilket ger effektiv intern logistik och en smidig arbetsmiljö för verksamheten.

Egenskaper och specifikationer

Access: via lastkaj och lastportar med direkt åtkomst till produktionsytorna

Takhöjd: 15,75 meter

Elkapacitet: kraftfull 3 000 A, lämpad för energikrävande verksamheter

Bärighet: robust golvkonstruktion med hög lasttålighet

Ljus och miljö: ljusa ytor och rationell planlösning för en trivsam arbetsmiljö

Läge och omgivning

Gränsbovägen 8 har ett mycket strategiskt läge, endast några minuter från E4:an, vilket ger utmärkta förbindelser till både Stockholm, Mälardalen och södra Sverige.
Området präglas av stabila industriverksamheter och god infrastruktur. Bland grannarna finns välkända företag som Ramirent, Swedol och Autoexperten.

Sammanfattning

Detta är en flexibel och funktionell lokal som kombinerar moderna kontorsytor med effektiv lager- och produktionskapacitet. Tack vare det utmärkta läget, de smidiga lastmöjligheterna och den starka tekniska infrastrukturen är detta en attraktiv lösning för företag som vill växa i Södertälje.

Välkommen på visning – upptäck möjligheterna på Gränsbovägen 8!

Planlösning

Lager med produktionsyta och möjlighet att hyra yta med pentry och kontorsrum.

Området

Fastigheten Traktorn 7 är en industri/lager lokal belägen i Södertälje. Södertälje är beläget mellan Strängnäs, Nyköping och Stockholm. Alltså enkelt att pendla från många olika håll

Kommunikationer

Kommunikationen i Södertälje består av både buss och pendeltåg. Det tar ca 45 minuter från Stockholm city. Inte långt från fastigheten svänger man av från Södertäljevägen. Vilket gör det snabbt och smidigt för de som vill köra bil.

Bussar nr 760 ,761 går från Södertälje och smidigt tar dig till Moraberg.

Fastigheten

Fastigheten är en industrifastighet belägen strax utanför Södertälje i Moraberg. Den ligger nära E4:an med bra skyltläge och är en singel fastighet med inhägnat markområde.


Bärighet:
Terassbjälklag: 10 kN/kvm
Golv i ställverk: 5 kN/kvm
Golv i presshall: 15 kN/kvm
Golv i manöverrum: 5 kN/kvm (tillika kontorsytorna och omklädningsrum på plan 1)
Golv i fläktrum: 5 kN/kvm

Byggnadsbeskrivning

Stomme: Stål och betong
Fasader: Tegel och puts
Yttertak: Papp
Uppvärmning: Luftburen fjärrvärme
Ventilation: Mekanisk till- och frånluft med värmeåtervinning och kyla

  • Hög bärighet
  • Lastkaj
  • Högt till tak

Faciliteter i fastigheten

Skyltläge

Service i området

Buss Tåg

Energi & hållbarhet

  • Total energianvändning (2025): 23 kWh/m²
  • Klimatpåverkan: 1,87 kg CO₂e/m² (platsbaserad)

Andra hyresgäster i fastigheten

Quatra Sweden AB

Karta

Dokument

Kontaktperson

Uthyrare

Alan Badareh Marofi

Fråga oss!

Nyfiken på den här lokalen? Eller behöver du hjälp att hitta rätt lokal för din verksamhet? Oavsett om du vet exakt vad du söker eller om du behöver rådgivning, så finns vi här och hjälper till.

Vi ser fram emot att höra av dig.

Intresseanmälan

Kontaktinformation

All behandling av personuppgifter sker i enlighet med dataskyddsförordningen och annan dataskyddslagstiftning. Läs mer om GDPR

Liknande lokaler i Stockholm