Gå till huvudinnehåll

Stockholm Södertälje

Gränsbovägen 8

Industri Lager/Logistik

Yta

4 428 kvm

Tillträdesdatum

Enl. ök.

Lager- och logistikfastighet med exceptionella möjligheter – Gränsbovägen 8

Välkommen till denna unika industrifastighet på 4 428 kvm, strategiskt belägen i Södertälje med endast några minuters körsträcka till E4:an. En perfekt plats för verksamheter inom logistik, produktion eller lagerhantering som söker stora ytor, kraftig elkapacitet och effektiv lastning.

Egenskaper och fördelar

Total yta: 4 428 kvm

Takhöjd: upp till hela 15,7 meter – idealiskt för höglager eller specialanpassad produktion

Elkapacitet: imponerande 3 000 A, redo för krävande drift

Lastning: smidig access via lastkaj och moderna lastportar med höjdjustering och tätning

Bärighet: golv med hög lasttålighet, anpassat för tung industri och maskinell verksamhet

Läge och omgivning

Fastigheten är belägen i ett väletablerat industriområde med snabb anslutning till E4:an, vilket ger utmärkta logistikmöjligheter mot både Stockholm, Mälardalen och södra Sverige.
I närområdet finns starka branschaktörer som Ramirent, Swedol och Autoexperten, vilket bidrar till ett professionellt och attraktivt företagsklimat.

Sammanfattning

Detta är en modern och robust industrifastighet med alla förutsättningar för effektiv verksamhet – från kraftig infrastruktur till flexibel användning. Lokalen kombinerar funktionalitet, tillgänglighet och styrka i en och samma helhet.

Välkommen på visning – här kan din verksamhet ta nästa steg!

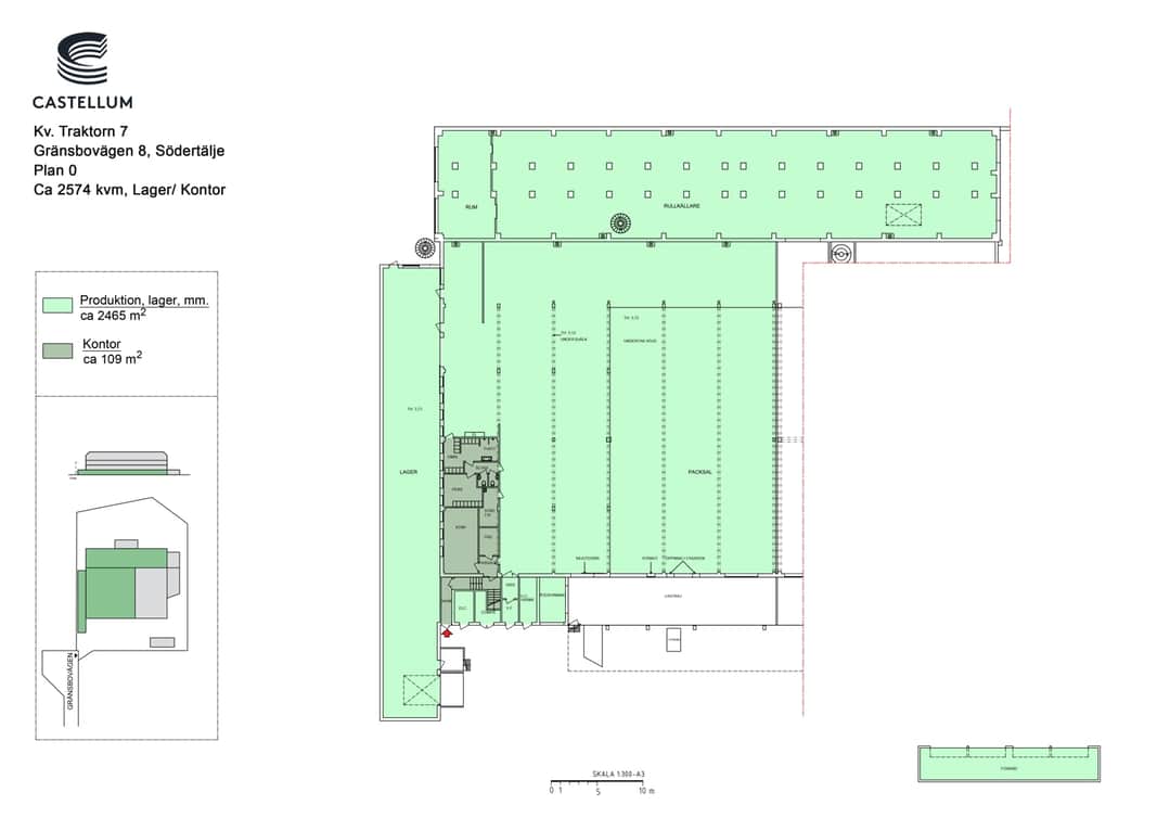
Planlösning

Ytan är fördelad på lager, produktion, personalytor och kontor.

Området

Fastigheten Traktorn 7 är en industri/lager lokal belägen i Södertälje. Södertälje är beläget mellan Strängnäs, Nyköping och Stockholm. Alltså enkelt att pendla från många olika håll

Kommunikationer

Kommunikationen i Södertälje består av både buss och pendeltåg. Det tar ca 45 minuter från Stockholm city. Inte långt från fastigheten svänger man av från Södertäljevägen. Vilket gör det snabbt och smidigt för de som vill köra bil.

Bussar nr 760 ,761 går från Södertälje och smidigt tar dig till Moraberg.

Fastigheten

Fastigheten är en industrifastighet belägen strax utanför Södertälje i Moraberg. Den ligger nära E4:an med bra skyltläge och är en singel fastighet med inhägnat markområde.


Bärighet:
Terassbjälklag: 10 kN/kvm
Golv i ställverk: 5 kN/kvm
Golv i presshall: 15 kN/kvm
Golv i manöverrum: 5 kN/kvm (tillika kontorsytorna och omklädningsrum på plan 1)
Golv i fläktrum: 5 kN/kvm

Byggnadsbeskrivning

Stomme: Stål och betong
Fasader: Tegel och puts
Yttertak: Papp
Uppvärmning: Luftburen fjärrvärme
Ventilation: Mekanisk till- och frånluft med värmeåtervinning och kyla

  • Hög bärighet
  • Lastkaj med höj- sänkbara lyftbord
  • Takhöjd om 15,7 meter

Faciliteter i fastigheten

Skyltläge

Service i området

Buss Tåg

Energi & hållbarhet

  • Total energianvändning (2025): 23 kWh/m²
  • Klimatpåverkan: 1,87 kg CO₂e/m² (platsbaserad)

Andra hyresgäster i fastigheten

Quatra Sweden AB

Karta

Dokument

Kontaktperson

Uthyrare

Alan Badareh Marofi

Fråga oss!

Nyfiken på den här lokalen? Eller behöver du hjälp att hitta rätt lokal för din verksamhet? Oavsett om du vet exakt vad du söker eller om du behöver rådgivning, så finns vi här och hjälper till.

Vi ser fram emot att höra av dig.

Intresseanmälan

Kontaktinformation

All behandling av personuppgifter sker i enlighet med dataskyddsförordningen och annan dataskyddslagstiftning. Läs mer om GDPR

Liknande lokaler i Stockholm