Gå till huvudinnehåll

Borås Knalleland

Evedalsgatan 5

Kontor

Hyresindikation

Från 30 000 kr/mån

Detaljerad hyresinformation

Tillkommer till hyran:
Driftkostnader: 80 kr/kvm
Fastighetsskatt: 10 kr/kvm
Moms 25%

Yta

300 - 1 700 kvm

Arbetsplatser

20 - 100 st

Så räknar vi antal arbetsplatser

Detta spann är en uppskattning. Det finns flera faktorer som påverkar hur många arbetsplatser som kan rymmas i en lokal. Inte bara storleken på själva lokalen utan även hur den disponeras. Exempelvis kräver en lokal med många enskilda kontor mer plats än öppen planlösning. Andra begränsningar kan vara tillgången på luft och kyla, eller utrymningsvägar.

Tillträdesdatum

2026-04-01

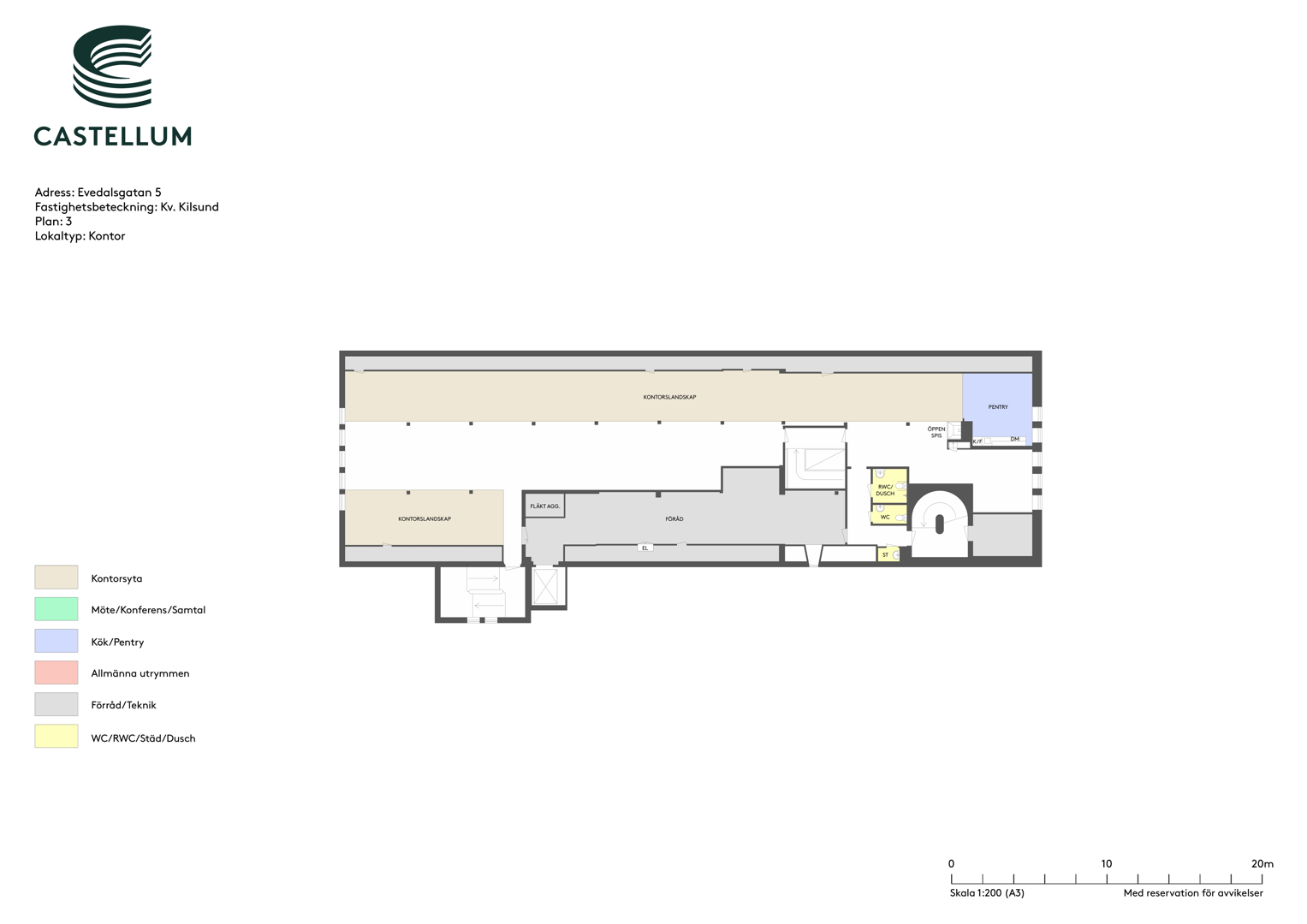
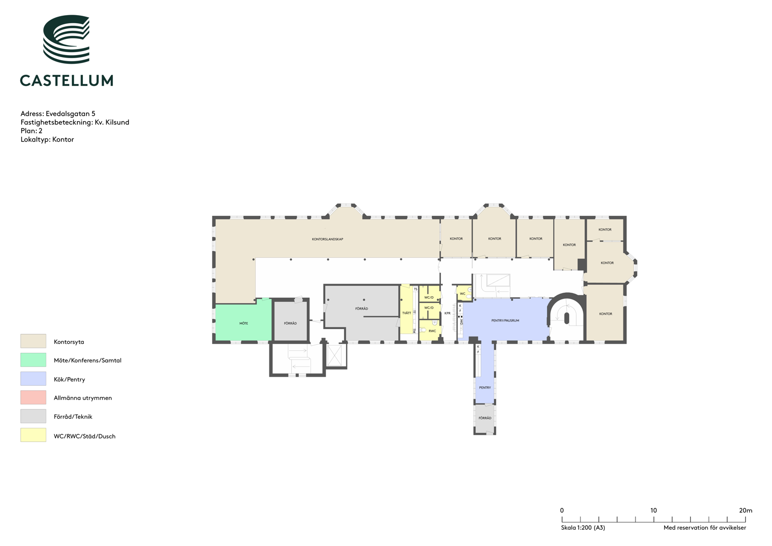
Våningsplan

2

Egen anrik kontorsbyggnad

Nu finnns chansen att hyra en egen anrik kontorsbyggnad eller delar av den. Byggnaden består av tre våningsplan som bindsamman med en snygg interntrappa. Ljus lokal med stora välvda fönster, på översta våningsplanet finns det stora takfönster och en öppen spis. Det är genomgående parkettgolv och ljuddämpande textilmatta. Till kontorsdelarna är det glaspartier. Mötesrum och stort öppet showroom.

Våningsplanen går att dela för att få lokaler om ca 300 kvm.

I samband med lokalanpassning eller ombyggnad är vår ambition att använda återbrukat material så långt det är möjligt och vi prioriterar hållbarhet för minsta möjliga miljöpåverkan. Genom att välja klimatsmarta lösningar kan vi tillsammans göra en stor skillnad.

Välkommen att kontakta oss för mer info och visning!

Planlösning

Planlösningen består i dagsläget av öppna kontorsytor, enskilda rum samt showroom. Ytorna är fördelade på tre våningsplan med en interntrappa. Våningsplanen går att dela.

Området

Gångavstånd till restauranger, gym, handel och apotek. Fastigheten ligger på gångavstånd till både Knalleland och Borås centrum.

Kommunikationer

Med fastighetens läge mellan centrum och Knalleland kommer man snabbt ut på lederna. Det finns dessutom bra busskommunikationer, då hållplats är belägen direkt utanför.

Parkering

Bra parkeringsmöjligheter.

Service

Hos oss har varje hyresgäst ett eget team!
Med ett starkt lokalt engagemang är vi måna om att leva upp till de förväntningar som ställs på en trygg och långsiktig hyresvärd, varje dag, i stort och smått.
Alla våra fastigheter sköts av vår egen personal och som hyresgäst har du tillgång till ett eget Castellumteam som ser till att du trivs hos oss.
Och om dina behov så småningom förändras kan vi, tack vare vår storlek, nästan alltid erbjuda en lösning. För att göra det enkelt för våra hyresgäster att leva hållbart erbjuder vi bland annat gröna hyresavtal och förnybar el.

Fastigheten

Fastigheten är relativt centralt belägen vid en genomfartsled, lättillgänglig för besökande och varutransporter.

Fastigheten är en kontors- och industri/lagerbyggnad med stor flexibilitet och bra in-/ urlastningsmöjligheter.

  • Anrik fastighet
  • Eget kontorshus
  • Nära Knalleland

Faciliteter i fastigheten

Parkering Skyltläge

Service i området

Buss Parkering Restaurang Café Shopping Gym

Energi & hållbarhet

  • Total energianvändning (2025): 5 kWh/m²
  • Klimatpåverkan: 2,84 kg CO₂e/m² (platsbaserad)

Andra hyresgäster i fastigheten

Nefab Edge Emballage AB - NEFAB Packaging Sweden AB - Craft of Scandinavia AB - Padelcity 1809 AB - Tumstocken Viran 28 AB - Assemblin El AB

Karta

Dokument

Kontaktperson

Uthyrare

Erik Williamson

Fråga oss!

Nyfiken på den här lokalen? Eller behöver du hjälp att hitta rätt lokal för din verksamhet? Oavsett om du vet exakt vad du söker eller om du behöver rådgivning, så finns vi här och hjälper till.

Vi ser fram emot att höra av dig.

Intresseanmälan

Kontaktinformation

All behandling av personuppgifter sker i enlighet med dataskyddsförordningen och annan dataskyddslagstiftning. Läs mer om GDPR

Liknande lokaler i Borås