Gå till huvudinnehåll

Helsingborg Väla Södra

Mogatan 6

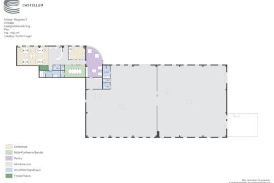
Kontor

Yta

241 kvm

Arbetsplatser

8 - 12 st

Så räknar vi antal arbetsplatser

Detta spann är en uppskattning. Det finns flera faktorer som påverkar hur många arbetsplatser som kan rymmas i en lokal. Inte bara storleken på själva lokalen utan även hur den disponeras. Exempelvis kräver en lokal med många enskilda kontor mer plats än öppen planlösning. Andra begränsningar kan vara tillgången på luft och kyla, eller utrymningsvägar.

Tillträdesdatum

Enl. ök.

Våningsplan

2

Kontorslokal med showroom på Väla Södra

Kontorslokal på ca 256 kvm belägen på våning 2 ledig för uthyrning i Väla Södras handelsområde.

Området

Fastigheten är belägen på Väla Södra Industriområde med industri-, lager- och kontorslokaler. Väla Södra har ett perfekt läge längs infartsleden från E4/E6, cirka 10 minuter från Helsingborgs centrum samt Väla Köpcentrum med bil.

Kommunikationer

Ett mycket bra kommunikationsläge med närhet till E4 och E6 och genomfartsled 111.
Stadsbusstrafik tar passagerarna mellan stadens centrum och Väla södra. TIll Ängelholms flygplats tar det ca 30 min med bil.

Parkering

Markparkering finns att tillgå på fastigheten.

Service

10 min bilväg till Väla köpcentrum med stort utbud av restauranger och affärer.

Fastigheten

Fastigheten består av tre fristående byggnader i 1-2 våningar.

  • Bra kommunikationsläge
  • Ett stenkast från Väla Köpcentrum

Faciliteter i fastigheten

Parkering

Service i området

Buss

Energi & hållbarhet

  • Total energianvändning (2025): 4 kWh/m²
  • Klimatpåverkan: 6,78 kg CO₂e/m² (platsbaserad)

Andra hyresgäster i fastigheten

Olssons Frö Aktiebolag - Mark & Trädgård Skottorp AB - Stavrot Invest AB - Peab AB - Helsingborg - Helsingborgs Veterinärklinik AB - Jetpak Malmö AB - Schindler Hiss AB - BSU Redovisning AB - Sanmateo Trilles, Pedro - Sydsvenska Städ Aktiebolag - Universalbolaget i Helsingborg Aktiebol

Karta

Dokument

Kontaktperson

Uthyrare

Jeanette Zigante

Fråga oss!

Nyfiken på den här lokalen? Eller behöver du hjälp att hitta rätt lokal för din verksamhet? Oavsett om du vet exakt vad du söker eller om du behöver rådgivning, så finns vi här och hjälper till.

Vi ser fram emot att höra av dig.

Intresseanmälan

Kontaktinformation

All behandling av personuppgifter sker i enlighet med dataskyddsförordningen och annan dataskyddslagstiftning. Läs mer om GDPR

Liknande lokaler i Helsingborg