Gå till huvudinnehåll

Stockholm Gärdet/Stockholms Hamnkvarter

Hangövägen 18

Kontor

Yta

340 kvm

Arbetsplatser

22 - 28 st

Så räknar vi antal arbetsplatser

Detta spann är en uppskattning. Det finns flera faktorer som påverkar hur många arbetsplatser som kan rymmas i en lokal. Inte bara storleken på själva lokalen utan även hur den disponeras. Exempelvis kräver en lokal med många enskilda kontor mer plats än öppen planlösning. Andra begränsningar kan vara tillgången på luft och kyla, eller utrymningsvägar.

Tillträdesdatum

2026-08-01

Våningsplan

6

Trivsamt, urbant kontor med industriell touch!

Välkommen till Stockholms hamnkvarter och ert nya kontor med närhet till grönska och vatten. Lokalen är idag i stomrent skick och kommer att anpassas efter era behov med nytt pentry, nya WC och nya ytskikt. Eftersom allt byggs från grunden har ni möjlighet att vara med och påverka lokalens utformning, med undantag för pentry och WC som har fasta lägen. Planritningen som presenteras är ett förslag på hur lokalen kan disponeras.

Byggnaden genomsyras av en industriell, urban och kaxig stil, där den nya fasaden i plåt speglar varvsarvet och historien kring Värtahamnen. Den känslan tas med när er lokal skapas, och ni har självklart möjlighet att välja material och detaljer som passar just er verksamhet.

Som hyresgäst får ni tillgång till Instabox, ett stort cykelrum samt anslutande dusch- och omklädningsrum.

Tillträde Q1 2027.

Välkommen på visning!

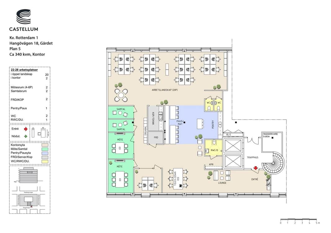
Planlösning

Lokalen är i stomrent skick och kommer att anpassas efter era behov.

Området

Gärdet är ett av Stockholms mest attraktiva områden för företag som värdesätter närhet till både city och natur. Här kombineras ett lugnt och representativt läge med utmärkta kommunikationer och ett växande utbud av service.

Området präglas av öppna grönområden, god tillgång till parkeringsmöjligheter och närhet till både tunnelbana och busslinjer. Samtidigt finns ett starkt kluster av etablerade aktörer inom media, kommunikation och offentlig sektor – vilket skapar goda förutsättningar för samverkan och nätverkande.
Med sitt strategiska läge mellan city, Djurgården och Norra Djurgårdsstaden erbjuder Gärdet en arbetsmiljö som kombinerar tillgänglighet, trygghet och hög kvalitet – perfekt för verksamheter med höga krav på både funktion och profil.

Kommunikationer

Det är bara 10 minuters promenad till Tunnelbana Gärdet och bussar går utanför fastigheten. Med bil är det nära ut på E18 och E4/E20 via Norra länken. Garage och cykelrum finns också i fastigheten.

Service

Det finns ett flertal restauranger i området. Eatery Värtahamnen ligger i fastigheten. Du har träningsanläggningar i området. På Gärdet finns gott träningsmöjligheter, du kan du åka skidor när snön ligger, ta en skön joggingrunda på lunchen, besöka utegymmet eller Kampementsbadet.

Fastigheten

Väl belägen kontorsfastighet i Värtahamnen.

  • Lokal i nyskick
  • Högt upp i fastigheten
  • Naturnära

Faciliteter i fastigheten

Omklädningsrum Cykelrum Parkering Elbilsladdning Restaurang Gym

Service i området

Buss Parkering T-bana

Energi & hållbarhet

  • Certifieringar: LEED O+M, Gold
  • Total energianvändning (2025): 15 kWh/m²
  • Klimatpåverkan: 3,32 kg CO₂e/m² (platsbaserad)

Andra hyresgäster i fastigheten

The Faculty - Kanal 75 AB - The Beverage Group by TGS Invest AB - HEAD Scandinavia AB

Karta

Dokument

Kontaktperson

Teamledare Uthyrning

Stina Wollsén

Fråga oss!

Nyfiken på den här lokalen? Eller behöver du hjälp att hitta rätt lokal för din verksamhet? Oavsett om du vet exakt vad du söker eller om du behöver rådgivning, så finns vi här och hjälper till.

Vi ser fram emot att höra av dig.

Intresseanmälan

Kontaktinformation

All behandling av personuppgifter sker i enlighet med dataskyddsförordningen och annan dataskyddslagstiftning. Läs mer om GDPR

Liknande lokaler i Stockholm