Gå till huvudinnehåll

Stockholm Gärdet/Stockholms Hamnkvarter

Tegeluddsvägen 100

Kontor

Hyresindikation

96 000 kr/mån

Detaljerad hyresinformation

Bashyra

Yta

302 kvm

Tillträdesdatum

Enl. ök.

Våningsplan

5

Välkommen till ett nyrenoverat kontor placerat i ett fullservicehus

En lokal där ni kan sätta er egen prägel!

Kontakta oss för mer info och för bokning av visning!

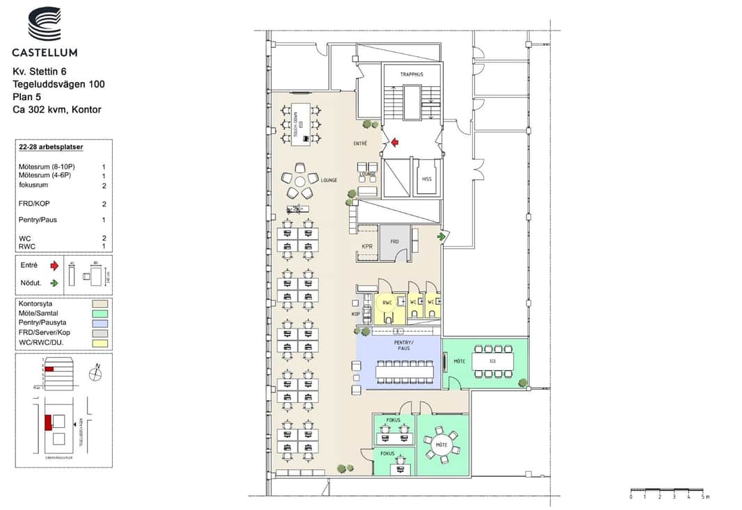
Planlösning

En stomren lokal som anpassas efter era behov. Planskissen är ett förslag på utförande och lokalens ytskikt anpassas enligt husets standard.

Området

Gärdet är ett av Stockholms mest attraktiva områden för företag som värdesätter närhet till både city och natur. Här kombineras ett lugnt och representativt läge med utmärkta kommunikationer och ett växande utbud av service.
Området präglas av öppna grönområden, god tillgång till parkeringsmöjligheter och närhet till både tunnelbana och busslinjer. Samtidigt finns ett starkt kluster av etablerade aktörer inom media, kommunikation och offentlig sektor – vilket skapar goda förutsättningar för samverkan och nätverkande.
Med sitt strategiska läge mellan city, Djurgården och Norra Djurgårdsstaden erbjuder Gärdet en arbetsmiljö som kombinerar tillgänglighet, trygghet och hög kvalitet – perfekt för verksamheter med höga krav på både funktion och profil.

Kommunikationer

Det är bara 10 minuters promenad till Tunnelbana Gärdet och bussar går utanför fastigheten. Med bil är det nära ut på E18 och E4/E20 via Norra länken. Garage och cykelrum finns också i fastigheten.

Service

I entréplanet finns en bemannad reception, fullt utrustade konferensrum samt den populära restaurangen Eatery, som serverar frukost, lunch och fika i en avslappnad miljö. Fastigheten erbjuder även omklädningsrum och duschar – perfekt för dig som cyklar till jobbet eller vill ta en löprunda på lunchen. I närområdet finns SATS Gärdet, Kampementsbadet med utegym samt ett stort utbud av restauranger och caféer – allt du behöver för en aktiv och bekväm arbetsdag.

Restaurang Eatery serverar god och hälsosam frukost, lunch, fika och middag. Samt brunch på helgerna om du har vägarna förbi.

Du har har gymkedjan SATS och gott om restauranger i närområdet. På Gärdet kan du åka skidor när snön ligger, ta en skön joggingrunda på lunchen, besöka utegymmet och Kampementsbadet som ligger knappt 250 meter bort.

Fastigheten

Här finns möjlighet att etablera ert företag i en attraktiv kontorsfastighet med utmärkt läge vid Gärdet. Fastigheten omfattar sex plan med effektiva kontorsytor och två stora ljusgårdar som skapar en ljus och öppen miljö med plats för både avkoppling och spontana möten.
De generösa fönstersättningarna ger ett fantastiskt ljusinsläpp i hela byggnaden. Här kombineras funktionella lokaler med ett lugnt, naturnära läge, samtidigt som city och goda kommunikationer finns inom räckhåll.

  • Fullservicehus
  • Buss utanför huset
  • Lokal anpassas efter era behov

Faciliteter i fastigheten

Omklädningsrum Café Uteplats Cykelrum Reception Konferensservice Garage Restaurang

Service i området

Buss Parkering Restaurang Café Hotell Gym Grönområde T-bana

Energi & hållbarhet

  • Certifieringar: LEED O+M, Gold
  • Total energianvändning (2025): 29 kWh/m²
  • Klimatpåverkan: 1,75 kg CO₂e/m² (platsbaserad)

Karta

Dokument

Kontaktperson

Uthyrare

Maria Lundberg

Fråga oss!

Nyfiken på den här lokalen? Eller behöver du hjälp att hitta rätt lokal för din verksamhet? Oavsett om du vet exakt vad du söker eller om du behöver rådgivning, så finns vi här och hjälper till.

Vi ser fram emot att höra av dig.

Intresseanmälan

Kontaktinformation

All behandling av personuppgifter sker i enlighet med dataskyddsförordningen och annan dataskyddslagstiftning. Läs mer om GDPR

Liknande lokaler i Stockholm