Gå till huvudinnehåll

Göteborg Högsbo/Sisjön

Stora Åvägen 19 A

Kontor

Hyresindikation

28 000 kr/mån

Detaljerad hyresinformation

Kallhyra ca 1500 kr/kvm/år i befintligt skick.
Drift och fastighetsskatt tillkommer.

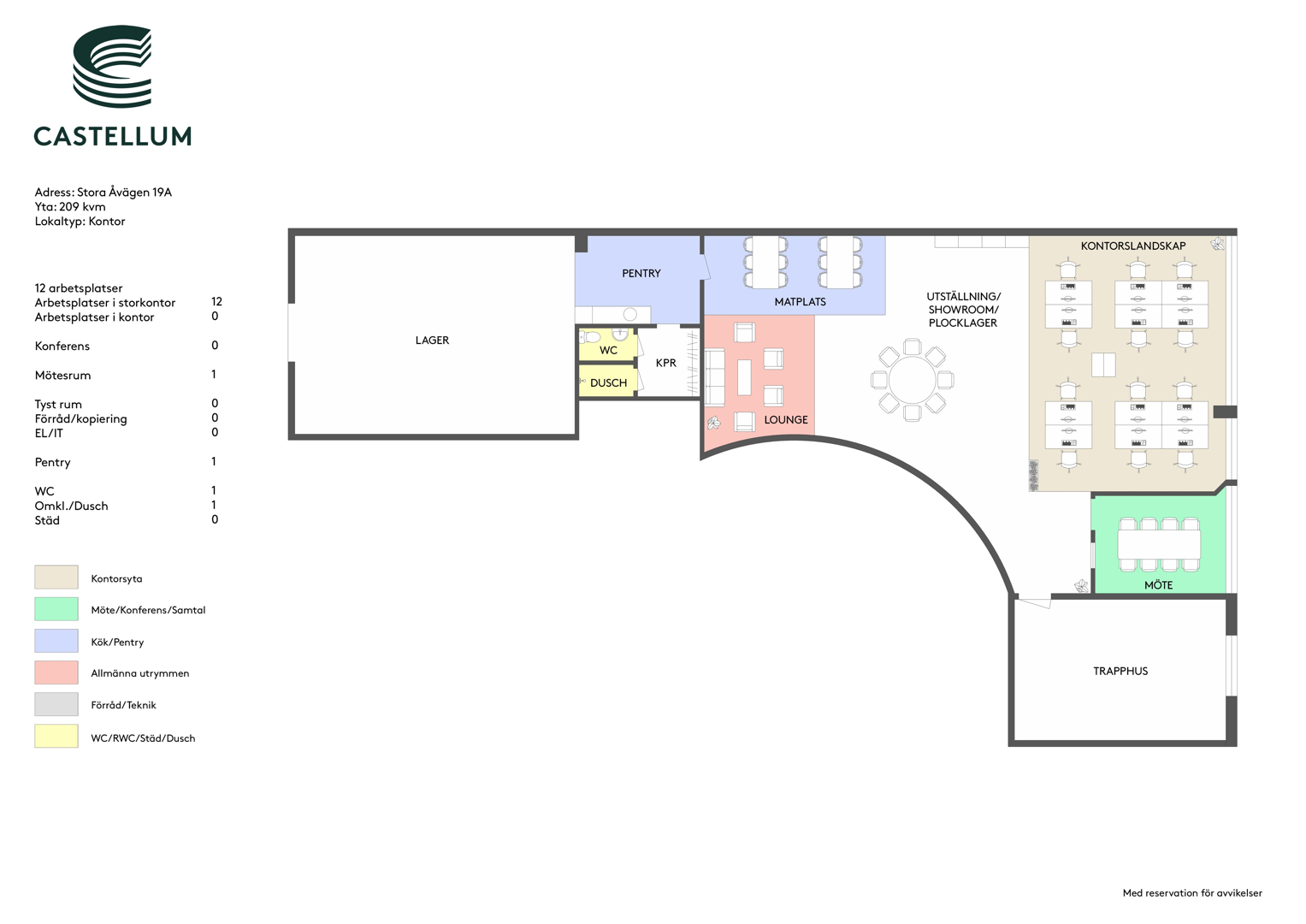
Yta

224 kvm

Arbetsplatser

5 - 12 st

Så räknar vi antal arbetsplatser

Detta spann är en uppskattning. Det finns flera faktorer som påverkar hur många arbetsplatser som kan rymmas i en lokal. Inte bara storleken på själva lokalen utan även hur den disponeras. Exempelvis kräver en lokal med många enskilda kontor mer plats än öppen planlösning. Andra begränsningar kan vara tillgången på luft och kyla, eller utrymningsvägar.

Tillträdesdatum

2026-11-01

Våningsplan

1

Ljus och öppen lokal i Sisjön

Lokalen ligger en trappa upp och består till stor del av en öppen yta, vilket gör den lätt att anpassa efter behov.
Den passar bra som kontor men fungerar lika fint som showroom, produktionslokal, plocklager eller lätt verkstad.

Stora fönster ger ett härligt ljusinsläpp. Utöver den öppna ytan finns ett konferensrum, toalett med dusch samt ett lager om cirka 60 kvm. Lagret ligger i markplan och nås via lastgång, smidigt för in- och utleveranser.

Sisjön är ett populärt och lättillgängligt område med goda parkeringsmöjligheter.

Välkommen att kontakta oss för mer info och visning!

Planlösning

Öppen planlösning med möjlighet till utställningsyta. Lager i markplan.

Området

Sisjön ligger direkt söder om Söderleden och drygt två kilometer sydost om Frölunda torg samt fyra kilometer sydväst om Mölndals centrum. Området var under 1970-talet mer ett industriområde men har sedan 2000-talet fått en markant mer handelsinriktning än tidigare. Stora infrastruktursatsningar har gjorts för anpassning mot de bilburna kunderna till de stora handelsaktörerna som etablerat sig på området.

Området är omtyckt även av traditionella verksamheter som har lager/kontor och industribehov och som vill ligga lättillgängligt för sin kunder och personal. Här finns ett gott utbud av service, friskvård och lunchrestauranger.

Inom företagsområdet Högsbo-Sisjön finns mer än 1 700 företag i fler än 200 branscher. Här arbetar dagligen fler än 30 000 personer. Eftersom området är expansivt och hela tiden förändrar sig så blir de exakta siffrorna fort inaktuella så siffrorna är ungefärliga. Företagsområdet är Nordens största med en yta på 3.070.000 m2.

Bara några få kilometrar från Sisjön ligger naturreservatet Sandsjöbacka med naturstigar, vandringsleder, eldplatser mm. Sisjöns golfklubb finns också i området i direkt närhet till Söderleden.

Besök gärna området Högsbo-Sisjöns företagarförening: http://hsff.nu/

Kommunikationer

Bra allmänna kommunikationer tex. buss 83, 84, Rosa Express.

Fastigheten

Fastigheten, som är en kontors- och handelsbyggnad, är belägen i Sisjöns handelsområde som ligger i västra Göteborg. Inom området finns tillgång till all typ av närservice i form av banker, post, lunchrestauranger, dagligvaruhandel och detaljister.

  • Skyltläge
  • Nära Söderleden
  • Lager i markplan

Faciliteter i fastigheten

Parkering Skyltläge Garage

Service i området

Buss Parkering Restaurang Café Shopping Gym

Energi & hållbarhet

  • Total energianvändning (2025): 23 kWh/m²
  • Klimatpåverkan: 1,62 kg CO₂e/m² (platsbaserad)

Andra hyresgäster i fastigheten

Arkipelagen Företagscenter Aktiebolag - Kvik A/S - 702101 - KR System Aktiebolag - Jeff Electronics Aktiebolag - Dormakaba Sverige AB - A-Team Projekt AB - SIMAB Sport AB - Färgstugan AB - Easy Bake i Mölndal Aktiebolag - Allicon AB

Karta

Dokument

Kontaktperson

Uthyrare

Katarina Uppling

Fråga oss!

Nyfiken på den här lokalen? Eller behöver du hjälp att hitta rätt lokal för din verksamhet? Oavsett om du vet exakt vad du söker eller om du behöver rådgivning, så finns vi här och hjälper till.

Vi ser fram emot att höra av dig.

Intresseanmälan

Kontaktinformation

All behandling av personuppgifter sker i enlighet med dataskyddsförordningen och annan dataskyddslagstiftning. Läs mer om GDPR

Liknande lokaler i Göteborg