Gå till huvudinnehåll

Göteborg Högsbo/Sisjön

E A Rosengrens Gata 13

Kontor

Hyresindikation

47 000 kr/mån

Detaljerad hyresinformation

Indikativ hyra i befintligt skick:
Kallhyra: 1300 kr/kvm/år
Driftkostnad: 150 kr/kvm
Fastighetskatt: 46 kr/kvm

Moms tillkommer med 25%

Yta

435 kvm

Arbetsplatser

15 - 29 st

Så räknar vi antal arbetsplatser

Detta spann är en uppskattning. Det finns flera faktorer som påverkar hur många arbetsplatser som kan rymmas i en lokal. Inte bara storleken på själva lokalen utan även hur den disponeras. Exempelvis kräver en lokal med många enskilda kontor mer plats än öppen planlösning. Andra begränsningar kan vara tillgången på luft och kyla, eller utrymningsvägar.

Tillträdesdatum

Enl. ök.

Våningsplan

2

Rumsindelat kontor med egen entré

Välkommen till detta unika kontor om 435 kvm med en stor öppen planlösning omgiven av flera kontorsrum. Här har ni egen entré och fräsha materialval. Lokalen har fina ytskikt och är i god standard. Man får en egen entré med parkeringar utanför. Garageplatser finns att hyra ett stenkast bort.

Kontoret är luftlig och har bra hög takhöjd.

Välkommen att kontakta oss för mer info och visning!

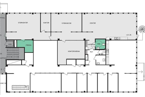
Planlösning

Här har ni många kontorsrum och konferensrum.
Pausyta med pentry och köksö finns i den öppna sociala delen. Lokalen har fina ytskikt och är i god standard.
Lokalen har en egen entré med parkeringar utanför. Garageplatser finns att hyra ett stenkast bort.

Området

Fastigheten ligger i direkt anslutning till Dag Hammarsköldsleden med fantastiskt skyltläge och ett stenkast till både Frölunda Torg och Köpcenter 421 med såväl service och restauranger. Högsbo genomgår just nu en långsiktig förvandling där man går från att vara ett renodlat industriområde till att bli en blandstad, det vill säga en handels- och mötesplats där många olika verksamheter ryms och där näringsliv samsas med boende, handel, restauranger och samhällsfunktioner av olika slag.

Kommunikationer

Bra möjligheter att åka kollektivt med busshållplats ca 250 m från fastigheten som trafikeras av två linjer. Det tar ca 5 min att resa till Marklandsgatan som är en knutpunkt för bussar och flera spårvagnslinjer alternativt 10 min för att ta sig till Radiomotet där man enkelt reser mot stan eller kranskommunerna.

Fastigheten

Industrifastighet

  • Egen entré
  • Hiss
  • Högt i tak

Faciliteter i fastigheten

Parkering Garage

Energi & hållbarhet

  • Total energianvändning (2025): 16 kWh/m²
  • Klimatpåverkan: 2,71 kg CO₂e/m² (platsbaserad)

Andra hyresgäster i fastigheten

Ljungdahls Färgekonomi Aktiebolag - GE-bäst Services AB - MEKO Workshops AB - Högsbo Plåtslageri - AB Västsvenska Elbolaget - Limited Edition Sverige AB - Power Factory Nordic OY AB - Swedref i Göteborg Aktiebolag - Ringstens Måleri & Plattsättning AB - KUSTENKLICK handelsbolag

Karta

Dokument

Kontaktperson

Uthyrare

Ylva Brodin

Fråga oss!

Nyfiken på den här lokalen? Eller behöver du hjälp att hitta rätt lokal för din verksamhet? Oavsett om du vet exakt vad du söker eller om du behöver rådgivning, så finns vi här och hjälper till.

Vi ser fram emot att höra av dig.

Intresseanmälan

Kontaktinformation

All behandling av personuppgifter sker i enlighet med dataskyddsförordningen och annan dataskyddslagstiftning. Läs mer om GDPR

Liknande lokaler i Göteborg