Gå till huvudinnehåll

Malmö Fosie

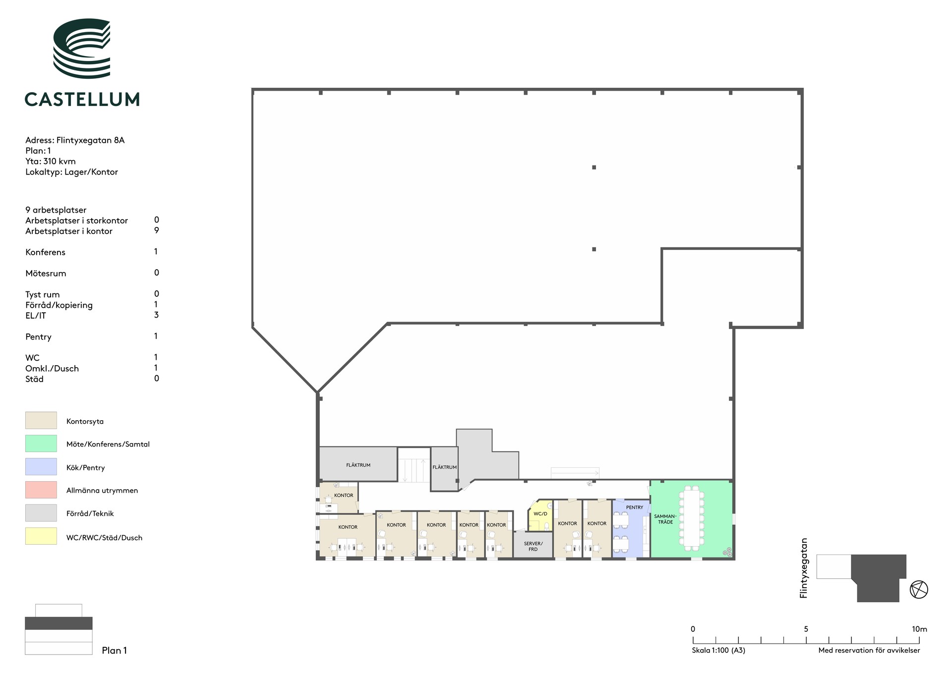
Flintyxegatan 8 A

Industri Kontor Lager/Logistik

Yta

1 983 kvm

Arbetsplatser

25 - 35 st

Så räknar vi antal arbetsplatser

Detta spann är en uppskattning. Det finns flera faktorer som påverkar hur många arbetsplatser som kan rymmas i en lokal. Inte bara storleken på själva lokalen utan även hur den disponeras. Exempelvis kräver en lokal med många enskilda kontor mer plats än öppen planlösning. Andra begränsningar kan vara tillgången på luft och kyla, eller utrymningsvägar.

Tillträdesdatum

2026-03-31

Rymlig lager- och produktionslokal med moderna kontor i Fosie

Välkommen till en flexibel och välplanerad lokal i hjärtat av Fosie industriområde – ett av Malmös mest attraktiva lägen för verksamheter inom lager, logistik och produktion. Här erbjuds en rymlig och funktionell fastighet som kombinerar effektiva produktionsytor med moderna kontorsmiljöer, perfekt för företag som söker en komplett helhetslösning.

Lager- och produktionsytor – ca 1 600 kvm med hög funktionalitet
De generösa lager- och produktionsytorna om ca 1 600 kvm har en fri takhöjd på cirka 6 meter under balk, vilket skapar god rymd och möjliggör effektiv lagring och hantering. Lokalen är utrustad med tre portar, men det finns möjlighet att installera fler vid behov, vilket gör ytan mycket flexibel för olika typer av logistikflöden och produktion.

Kontorsdel i två plan – moderna och funktionella arbetsmiljöer
Kontorsytorna är fördelade på både bottenplan och plan 1, och är idag främst indelade i cellkontor. Här finns cirka 13 kontorsrum, flera mötes- och konferensrum, lunchrum samt omklädningsrum. Lokalerna erbjuder god arbetsmiljö för både administrativ personal och arbetsledning, och kan enkelt anpassas efter en ny hyresgästs behov.

Utemiljö – parkering och logistikytor
Fastigheten erbjuder ca 30 parkeringsplatser, generösa ytor för in- och utlastning, samt cykelparkeringar – ett värdefullt tillskott för företag med både medarbetare och transportflöden i fokus.
Denna lokal passar perfekt för företag som behöver en kombination av lagerytor, produktion och kontor i en strategiskt belägen och lättillgänglig del av Malmö.

Fosie industriområde är ett av Malmös största och mest etablerade verksamhetsområden, strategiskt placerat i södra Malmö med utmärkt anslutning till både Inre Ringvägen, E6/E22 och övriga huvudleder. Området är känt för sin mångfald av företag inom logistik, tillverkning, bygg, handel och service – en dynamisk miljö där små och stora verksamheter samverkar och utvecklas.
Här finns snabb access till hela Öresundsregionen, vilket gör området mycket attraktivt för företag med regionala eller internationella flöden. Närheten till Malmös centrala delar, Hyllie, hamnen och både järnvägs- och busstrafik skapar en smidig vardag för både medarbetare och kunder.
Fosie erbjuder en robust infrastruktur, goda parkeringsmöjligheter, välutbyggd service samt ett fortsatt starkt utvecklingstryck – ett område där företag ges goda förutsättningar att växa.

Området

I omgivningen finns fastigheter som består av kontor, handel och industri. I närheten finns flertalet lunchrestauranger och Järgersro Köpcentrum med stor matbutik och trevliga shoppingmöjligheter.

Starkt företagskluster där Fosie tillsammans med Jägersro bildar stadens största verksamhetsområde. Denna täthet skapar synergier mellan företag inom allt från logistik till högteknologisk produktion.

Trots den industriella karaktären finns parker som Trehögsparken, som Malmö Stad nu satsar stort på att mondernisera och utveckla för att kombinera verksamheter med service och restauranger.

Fosie är ett av Malmös absolut viktigaste företagsområden. Tillsammans med Jägersro bildar det stadens största företagsdistrikt.

Kommunikationer

Läget är strategiskt mellan Inre och Yttre Ringvägen, vilket ger goda förbindelser till både Malmö centrum, Öresundsbron och vidare ut i Europa. Flertalet busslinjer passerar och busshållplats finns inom ett kort gångavstånd.

Parkering

Gott om parkeringar för såväl personal som för besökande till fastigheten. Laddmöjligheter finns på fastigheten.

Fastigheten

Industribyggnad med stora, moderna kontorsdelar. Markportar, väl tilltagen takhöjd i lagerdelarna och oljeavskiljare. Mycket goda parkeringsmöjligheter för personal såväl som för besökare. Laddmöjligheter finns.

Stommen består av prefabricerade betongelement. Taktäckning av duk och papp samt isolering av mineralull. Fönster med metallbågar och treglas isolerrutor. Vatten, avlopp och el är anslutet till det kommunala nätet. Uppvärmning sker med fjärrvärme. Kyla finns installerad.

  • Strategiskt läge i Fosie
  • Lokal med bra kvalitet
  • Generösa parkeringsytor

Faciliteter i fastigheten

Omklädningsrum Lastport Uteplats Parkering Elbilsladdning

Service i området

Buss Restaurang Shopping

Energi & hållbarhet

  • Total energianvändning (2025): 26 kWh/m²
  • Klimatpåverkan: 6,83 kg CO₂e/m² (platsbaserad)

Andra hyresgäster i fastigheten

NP Innovation AB

Karta

Dokument

Kontaktperson

Uthyrare

Håkan Gustafsson

Fråga oss!

Nyfiken på den här lokalen? Eller behöver du hjälp att hitta rätt lokal för din verksamhet? Oavsett om du vet exakt vad du söker eller om du behöver rådgivning, så finns vi här och hjälper till.

Vi ser fram emot att höra av dig.

Intresseanmälan

Kontaktinformation

All behandling av personuppgifter sker i enlighet med dataskyddsförordningen och annan dataskyddslagstiftning. Läs mer om GDPR

Liknande lokaler i Malmö