Kontorslokal i attraktiva Kallebäck!
Upptäck ett modernt och effektivt kontor med enastående möjligheter att skräddarsy lokalen efter just din verksamhet. Detta halva våningsplan erbjuder både öppna planlösningar, kontorsrum och mötesrum med hög standard och en mycket representativ miljö.
Beläget med utmärkta kommunikationer med bil, buss, cykel och spårvagn, så är det enkelt för både anställda och besökare att komma till och från kontoret.
Välkommen att kontakta oss för mer info och visning.
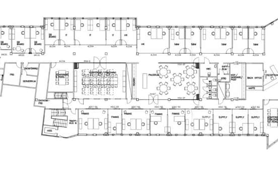
Planlösning
Stora öppna kontorsytor samt enskilda kontorsrum. Mötesrum i olika storlekar och gemensamhetsytor.
Området
Det pågår många spännande projekt i närheten av "Tändstickan 2 ooch 3". Fastigheten ligger i ett nytt område som växer fram mellan Göteborg och Mölndal. Idag består omgivningen till största del av industri, men Göteborgs kommun och Mölndals stad har tagit fram en gemensam översiktsplan för att skapa en levande stadsdel med både kommersiella fastigheter och bostäder.
Kommunikationer
Området har ett utmärkt geografiskt läge mellan de två knutpunkterna Korsvägen och Mölndals C. Kollektivtrafiken är bra med tillgång till spårvagn och buss. Därtill ligger fastigheterna med direktanslutning till E6:an där man med enkelhet kan fortsätta söderut mot Malmö, norrut mot Oslo eller österut mot Stockholm. Från centrala Göteborg cyklar du till kontoret på tio minuter. Spårvagnen tar ungefär lika lång tid. Om du vill ta bilen till jobbet ligger E6/E20 och Mölndalsvägen precis intill fastigheten.
Parkering
P-hus och Cykelgarage
Service
I närområdet finns redan idag flera stora livsmedelsbutiker, bensinmackar, restauranger, gym och hotell.
Fastigheten
"Tändstickan 2 och 3" utgörs av moderna och attraktiva kontor i ett av Göteborgs mest expansiva blandstadsområden. Totalt uthyrbar area är 18274 kvm som kompletteras med ett P-hus innehållande 477 p-platser.
- Modernt
- Garage
- Attraktivt område
Faciliteter i fastigheten
Service i området
Energi & hållbarhet
- Hållbarhetscertifiering: LEED New Construction, Gold
- Total energianvändning: 102 kWh / m², år
- Energi CO2-påverkan: 2,6 kg CO₂ / m², år
Andra hyresgäster i fastigheten
Karta
Dokument
Planritning
Broschyr
Kontaktperson

Nyfiken på den här lokalen? Eller behöver du hjälp att hitta rätt lokal för din verksamhet? Oavsett om du vet exakt vad du söker eller om du behöver rådgivning, så finns vi här och hjälper till.
Vi ser fram emot att höra av dig.