Välkommen till lokalen där varje detalj är designad för en minnesvärd upplevelse och utsikt över Hyllie Stationstorg puls!
Välkommen till vår inspirerande lokal, där varje hörn är skapat för att väcka kreativitet och ge er den perfekta arbetsmiljön.
Med ljusa och öppna utrymmen har vi formgivit den ultimata arbetsmiljön för att låta din kreativitet flöda fritt.
Från din arbetsplats har du en fantastisk utsikt över Hyllie Station och kan uppleva pulsen på torget.
Den centrala placeringen gör det enkelt att nå lokalen med tåg eller buss, vilket inte bara sparar tid utan ger dig också den flexibilitet du behöver.
Kontoret är inte bara en arbetsplats utan navet där möten omvandlas till idéer och samarbete. Vi strävar efter att skapa en atmosfär där arbetsdagen flyter smidigt och där varje ögonblick räknas.
Området runt kontoret erbjuder en rikedom av möjligheter. Med närheten till Öresundsbron, Malmömässan, hotell och det imponerande Emporia köpcentrum, med sina 180 butiker, blir arbetsdag en del av något större.
Här kan du balansera arbete och nöje på ett sätt som passar just dig.
Låt din arbetsplats bli en del av den pulserande energin i Hyllie!
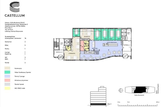
Planlösning
Lokalen hälsar dig välkommen med en ljus och inbjudande entré, där du stiger in i en arbetsmiljö som omfattar mångfaldiga planlösningar. Från öppna samarbetsområden till privata mötesrum och avslappnande utomhusytor – här erbjuds varje arbetsuppgift en dedikerad plats.
Området
Hyllie - ett läge för både arbetsliv och boende. En ständigt växande stadsdel i Malmös södra del som rymmer både shoppingcentret Emporia, Malmö Arena samt Malmömässan för att bara nämna några destinationer.
Kommunikationer
Bra kommunikationsmöjligheter, i form av både tåg och bussar som frekvent trafikerar stadsdelen. Med tåg når man Nordens största flygplats, Kastrup, på 12 minuter och centrala Malmö når man på 5 minuter. Med bil når man snabbt både inre- och yttre ringvägen. Mellan Hyllie och centrala Malmö finns även bra cykelstråk.
Service
Hyllie erbjuder bra shopping- och lunchmöjligheter. I området finns även två hotell i form av Quality Hotel View och Malmö Arena Hotel.
Fastigheten
Kontorsbyggnad i glas byggd ovanpå Malmös bästa shoppingcenter och med ett svårslaget kommunikationsläge. Fastigheten är miljöcertifierad enl LEED EBOM, Gold och ritad av arkitekt Gert Wingårdh.
- Ljust
- Närhet till station
- Garage
Faciliteter i fastigheten
Service i området
Energi & hållbarhet
- Hållbarhetscertifiering: LEED O+M, Gold
- Total energianvändning: 78 kWh / m², år
- Energi CO2-påverkan: 10,3 kg CO₂ / m², år
Andra hyresgäster i fastigheten
Karta
Dokument
Broschyr
Kontaktperson

Nyfiken på den här lokalen? Eller behöver du hjälp att hitta rätt lokal för din verksamhet? Oavsett om du vet exakt vad du söker eller om du behöver rådgivning, så finns vi här och hjälper till.
Vi ser fram emot att höra av dig.