Gå till huvudinnehåll

Stockholm Kista

Jan Stenbecks Torg 17

Kontor

Yta

500 kvm

Tillträdesdatum

Enl. ök.

Våningsplan

2

Ljus och välplanerad lokal i modern fastighet!

Ljus och modern lokal i den populära fastigheten Kista One – en kontorsmiljö som kombinerar funktion, flexibilitet och ett av Kistas bästa lägen.

Här får ni en rymlig och smart planerad lokal med både öppna arbetsytor och välplacerade mötesrum, perfekt för verksamheter som vill sitta representativt och samtidigt ha nära till all tänkbar service. De stora fönsterpartierna längs fasaden skapar en ljus och trivsam atmosfär genom hela arbetsdagen.

Fastigheten ligger precis intill Kista Galleria, vilket ger omedelbar tillgång till restauranger, butiker, service och kommunikationer. I huset finns dessutom ett omfattande serviceutbud med två gemensamma receptioner, moderna konferensrum, gym, restauranger och caféer – allt för att förenkla och förbättra vardagen för både medarbetare och besökare.

Kista One är en arbetsplats som ger ett professionellt intryck från första steget in och erbjuder en miljö där människor trivs, möts och kan prestera på topp. Här får ni ett kontor som både stärker varumärket och gör arbetslivet lite enklare.

Kontakta oss gärna för en personlig visning för dig och ditt företag.
Vi ser fram emot att höra från er!

Planlösning

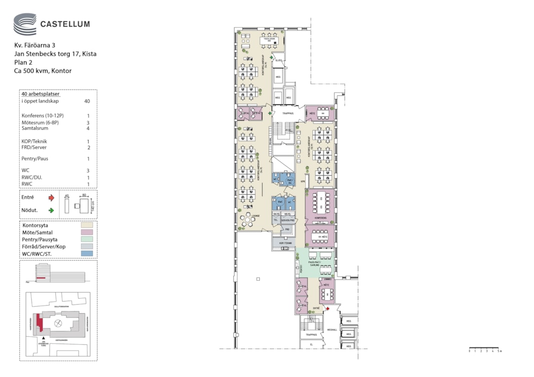
Denna kontorslokal om ca 500 kvm erbjuder en välbalanserad och effektiv planlösning med totalt 40 arbetsplatser i öppet landskap. Lokalen är långsträckt och ljus, vilket skapar en trivsam arbetsmiljö med god överblick och naturligt flöde. Längs fasaderna finns två större öppna kontorsytor med generöst ljusinsläpp, kompletterade av flera mindre ytor för fokusarbete.

Centralt i lokalen ligger en grupp mötesrum i olika storlekar: ett större konferensrum för 10–12 personer, ett mötesrum för 6–8 personer samt ett mindre samtalsrum. Dessa är strategiskt placerade nära kommunikationsstråken, vilket gör dem lättillgängliga för både medarbetare och besökare.

Intill mötesdelen finns en pentry-/pausyta, utformad som en social nod med sittplatser för lunch och informella möten. I anslutning finns även WC, RWC/Dusch, förråd och städutrymmen, smidigt samlade för att stödja det dagliga flödet.

Längs lokalens kärna återfinns ytor för kopiering/teknik, förråd och server, placerade så att de inte stör arbetsytorna.

Helheten är en modern, funktionell och lättnavigerad kontorsmiljö där arbetsplatser, mötesrum och sociala ytor samspelar på ett naturligt sätt. Lokalen lämpar sig väl för företag som söker en rymlig, ljus och flexibel kontorslösning i Kista.

Området

Välkommen till Kista. Platsen där människor från hela världen samlas för att upptäcka, utforska, uppfinna och uppleva. Här testkörs ny teknik, här breder gatukonsten ut sig, här överraskar restaurangerna och här frodas grönska och innovationer, precis som nya förmågor och forskarstjärnor.

Ändå har Kista mer att erbjuda. De närmaste åren kommer stadsdelen få flera tusen nya bostäder och arbetsplatser samt bli en del av tvärbanan, så att livet kan sprudla i varje hörn och under dygnets alla timmar. Och för att ytterligare ta vara på Kistas fulla potential har vi på Castellum gått samman med andra aktörer i ett initiativ som ger stadsdelen en kulturell och social skjuts.

Vad som händer mellan milstolparna är det ingen som vet. Men hör ni hemma bland de nytänkande, är detta platsen för er. Vi lovar att alltid vara på tårna för att hålla jämna steg med både ert företags och Kistas utveckling.

Kommunikationer

Kista är svårslaget om man vill sitta i ett område med bra kommunikationer. Det tar 3 minuter att promenera från fastigheten till Kista tunnelbanestation. Flera busslinjer går genom området, bland annat buss 523 och 178 som stannar vid pendeltågsstationen Helenelund. Du tar dig till Arlanda och Bromma flygplats med pendeltåg eller flygbuss. Snart kommer även Tvärbanan att korsa Kista. Just nu byggs den ut från Norra Ulvsunda via Bromma flygplats till Ursvik för att sedan fortsätta till Kista och Helenelund.

Service

Som hyresgäst på Kista One får du tillgång till en rad olika tjänster som förenklar vardagen för dig och dina kollegor. De två bemannade receptionerna vid huvudentréerna erbjuder receptionsservice och uthyrning av gemensamma konferensrum. Ett fullt utrustat fastighetsgym som drivs av Motion Studios är öppet för samtliga hyresgäster. Garage och separat cykelrum finns i fastigheten och hissar går direkt mellan de olika planen. Där finns laddningsstationer för elbilar och elcyklar tillsammans med tryckluft för pumpning av däck. I garaget erbjuds också biltvätt med service.

Kista One erbjuder nu ett nytt gym och en rad andra bekvämligheter för hyresgästerna – allt för att underlätta och höja vardagsupplevelsen i fastigheten.

En kort promenad från fastigheten ligger Kista Galleria. Den är en av Stockholms mest välbesökta gallerior och har ett stort utbud av shopping, restauranger och nöjesaktiviteter - bland annat bowling, bio och gokart.

Fastigheten

Fastigheten Kista One är platsen för alla. Vi erbjuder en rad olika kontorslösningar med ett serviceutbud som innehåller allt ett företag behöver. Med två bemannade receptioner och fyra konferensrum, som drivs av teamet på I Know A Guy, sträcker sig vår service från effektiv posthantering till professionell eventplanering, och såklart allt där emellan!

På innergården har vi skapat en inbjudande miljö med mängder av sittplatser, en terrass och massor av grönytor. Dessutom har Fastigheten Kista One investerat i hållbarhet. Med en solcellsanläggning, geoanläggning och en egen biodling strävar vi mot att minska vår påverkan på miljön. Vår fastighet är stolt certifierad som LEED Gold, vilket understryker vårt engagemang för hållbarhet och miljöansvar.

  • Ljus och modern lokal
  • Optimalt läge i Kista
  • Bra kommunikationer

Faciliteter i fastigheten

Cykelrum Parkering Reception Garage Restaurang Gym

Service i området

Buss T-bana

Energi & hållbarhet

  • Certifieringar: LEED New Construction, Gold
  • Total energianvändning (2025): 35 kWh/m²
  • Klimatpåverkan: 0,27 kg CO₂e/m² (platsbaserad)

Andra hyresgäster i fastigheten

Excillum AB - ACO Hud Nordic AB - Regus - Cellmax Technologies AB - Signify Sweden AB - Sigma Connectivity WSI AB - Pirelli Tyre Nordic Aktiebolag - Wind River AB - Joyweek - Grenkeleasing AB - Responda Group AB - Synoptik - Tillmobil i Norden AB - Analog Devices AB - Mama Mia - MACOM - Hamilton Nordic AB - Comfort-Kedjan AB - Akkodis Edge Sweden AB - TeraSi AB - Nefab Aktiebolag - Castellum Stockholm AB - Din Vårdcentral i Stockholm AB - Bitlog Nordic AB - Init Sweden AB - Sunway Communication AB - ResMed Sweden AB - T2 Data Aktiebolag - Altegra Consulting AB - Microchip Technology Sweden AB - Photomate Scandinavia AB - Retail 24 - Excedo Networks AB - Global House AB - Swereco AB - VFS Global Sweden AB - Nordic Bulkers AB - Innophase IoT AB - Holy Greens AB - Bramsburgers AB - Audika AB - Färöarna 3 - Molex Sweden - Intersurgical AB - Ugglan Dental

Karta

Dokument

Kontaktperson

Uthyrare

Jessica Andrée

Fråga oss!

Nyfiken på den här lokalen? Eller behöver du hjälp att hitta rätt lokal för din verksamhet? Oavsett om du vet exakt vad du söker eller om du behöver rådgivning, så finns vi här och hjälper till.

Vi ser fram emot att höra av dig.

Intresseanmälan

Kontaktinformation

All behandling av personuppgifter sker i enlighet med dataskyddsförordningen och annan dataskyddslagstiftning. Läs mer om GDPR

Liknande lokaler i Stockholm